- ft²
3 rooms
1 bed
1 bath
Co-op
- Upper West Side
Resale
recorded sale
Sold on 1/31/2023
Verified by closing records
Last listed for $1,200,000
Seller's agent
This home has been saved by 32 users.
Listing by Brown Harris Stevens, Real Estate Principal Office, 1934 Broadway, New York, NY 10023
Maintenance fees
$1,419/mo
Estimated payment
$7,526/mo
Legal disclaimerAll calculations are estimates provided by StreetEasy for informational purposes only. Actual amounts or financing terms may vary. Please contact your mortgage provider for specifics.Taxes
Included in maintenance fees
Tax abatement
No info
About
Seller’s agent
Buyer’s agent
description
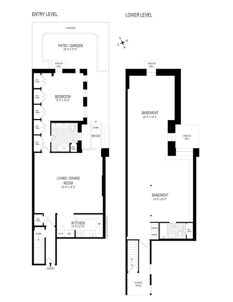
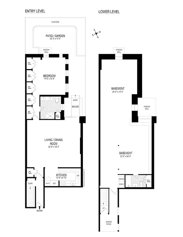
UWS Garden 1BD/1BA Plus Bonus Room
Introducing #GR at 114 W81st Street - an absolutely charming and unique garden level 1-Bedroom / 1 bath + bonus room pre-war residence on one of the most picturesque blocks on the UWS.
The main entrance through the parlor floor greets you with stunning original grand millwork, take the staircase down one floor below and discover the south facing oversized 1 bedroom home with private outdoor space waiting for you.
Policies
Sorry, policy info isn’t available right now. Check back later.
Home features
Private outdoor space
Garden
Washer/dryer
Building amenities
No info on building amenities
About the building
114 West 81st Street
114 West 81st Street, New York, NY 10024
10 units
4 stories
1900 built
For sale
0 available units for saleFor rent
0 available units for rentDocuments and permits
View documents and permitsProperty history
- Price Change: No changes
- Days on market: 52 daysThis is the number of days the listing has been on StreetEasy.
| Date | Price | Event |
|---|---|---|
1/31/2023 | $1,150,000 | Sold by Brown Harris Stevens |
11/14/2022 | $1,200,000 | In contract |
9/23/2022 | $1,200,000 | Listed by Brown Harris Stevens |
Past listing photos
Sign in to take a closer look at how this home compares to similar homes.
Explore Upper West Side
Transit
| Location | Distance |
|---|---|
BCat 81st St–Museum of Natural History | 0.2 miles |
1at 79th St | 0.23 miles |
1at 86th St | 0.33 miles |
BCat 86th St | 0.33 miles |
123at 72nd St | 0.45 miles |
About Upper West Side
Rental prices shown are base rent before any fees. Visit listings for cost and fees breakdown.
SalesMedian asking price
1 bed
$782.5K
RentalsMedian asking base rent
1 bed
$4,500
Sandwiched between two beautiful parks, the Upper West Side is one of the greenest spots in Manhattan. For that reason, it is a perennial favorite. The Upper West Side is relaxed, but never dull. There are plenty of low-key bars and restaurants to frequent along Amsterdam Avenue, and Broadway is an always-bustling commercial center. The wide, tree-lined streets still boast many mom-and-pop stores. Less posh than the Upper East Side, it is more easily accessible by public transportation, and real estate prices are just as, if not more, expensive.
Learn more about Upper West Side































































































































