$2,995
For Rent
Base rent only. For total monthly price and additional fees, see .
Rented 4/28/2025
- ft²
2 rooms
Studio
1 bath
Condop
- Lenox Hill
Under NYC law, you can't be charged a broker fee if you didn't hire a broker.
Listed By
This home has been saved by 90 users.
Listing by Brown Harris Stevens, Real Estate Principal Office, 445 Park Avenue, New York, NY 10022
Unavailable
Rented on 4/28/2025
Days on market
10 days
Last price change
No changes
About
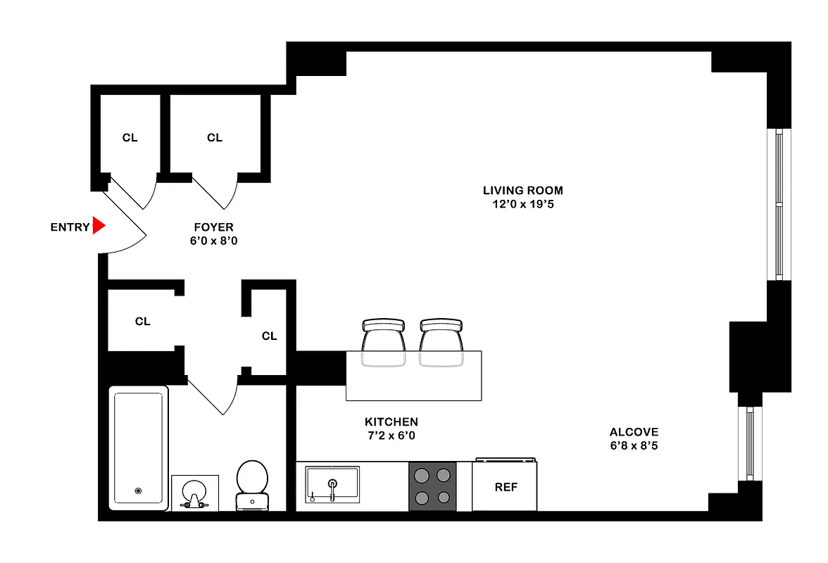
Move right into this just renovated alcove studio that has a brand new open kitchen with a breakfast bar & 4 really large closets!
A must see & won't last long!
Showing on Sunday by appointment only.
******PLEASE NOTE THERE IS A $1,000 MOVE IN FEE AND WHEN YOU MOVE OUT A $1,000 MOVE OUT FEE â THE MOVE IN DEPOSIT WHICH YOU GET BACK 2 DAYS AFTER MOVE IN IS $1,500
THE MANAGING AGENT OF THE BUILDING PROCESSES...
Policies
Pets allowed
Home features
No info on home features
Building amenities
Services and facilities
Bike room
Doorman
Full-time
Elevator
Live-in super
Wellness and recreation
Children's playroom
Gym
Shared outdoor space
Roof deck
About the building
1175 York Avenue
1175 York Avenue, New York, NY 10065
232 units
18 stories
1958 built
Property history
Prices shown are base rent only. For total monthly price and additional fees, see .
| Date | Base rent | Event |
|---|---|---|
4/28/2025 | $2,995 | Rented by Brown Harris Stevens |
4/18/2025 | $2,995 | Listed by Brown Harris Stevens |
Past listing photos
Sign in to take a closer look at how this home compares to similar homes.
Explore Lenox Hill
Transit
| Location | Distance |
|---|---|
Qat 72nd St | 0.38 miles |
NRW456at Lexington Av/59th St | 0.42 miles |
FQat Lexington Av/63rd St | 0.49 miles |
6at 68th StâHunter College | 0.53 miles |
EM6at Lexington Avâ53rd St | 0.64 miles |
Similar homes
Prices shown are base rent only and don't include any fees. Visit each listing to see a complete cost breakdown.
Similar Homes looks at ad spend and other factors like location, price, and number of beds and baths.


























































