$4,350
For Rent
Base rent only. For total monthly price and additional fees, see .
No longer available 11/20/2023
1,000 ft²
$52 per ft²
4 rooms
2 beds
2 baths
Hybrid
- Bedford-Stuyvesant
Under NYC law, you can't be charged a broker fee if you didn't hire a broker.
Listed By
This home has been saved by 21 users.
Listing by Compass, Corporate Broker, 387 Park Avenue South, New York, NY 10016
Unavailable
No longer available on 11/20/2023
Days on market
8 days
Last price change
No changes
About
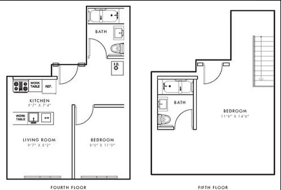
Welcome to this spacious and bright top-floor duplex loft, offering a contemporary living experience with an abundance of natural light and impressive 10-foot ceilings. As you step inside, you'll immediately notice the sleek and modern kitchen, complete with quartz countertops, stainless steel appliances, and a perfect blend of functionality and style.
Policies
Sorry, policy info isn’t available right now. Check back later.
Home features
Central air
Dishwasher
Hardwood floors
View
City
Washer/dryer
Building amenities
Services and facilities
Elevator
Wellness and recreation
No info on wellness and recreation
Shared outdoor space
Roof deck
About the building
1192 Bedford Avenue
1192 Bedford Avenue, Brooklyn, NY 11216
36 units
5 stories
2014 built
Property history
Prices shown are base rent only. For total monthly price and additional fees, see .
| Date | Base rent | Event |
|---|---|---|
2/19/2024 | $4,350 | No longer available |
11/20/2023 | $4,350 | Temporarily off market |
11/12/2023 | $4,350 | Listed by Compass |
4/9/2018 | $2,850 | |
4/2/2018 | $2,850 |
Sign in to take a closer look at how this home compares to similar homes.
Explore Bedford-Stuyvesant
Transit
| Location | Distance |
|---|---|
ACSat Franklin Av | 0.16 miles |
ASat Franklin Av | 0.18 miles |
ACat Nostrand Av | 0.3 miles |
Gat Bedford–Nostrand Avs | 0.42 miles |
LIRRat Nostrand Avenue | 0.46 miles |
About Bedford-Stuyvesant
Rental prices shown are base rent before any fees. Visit listings for cost and fees breakdown.
SalesMedian asking price
2 beds
$1.2M
RentalsMedian asking base rent
2 beds
$3,800
Bedford-Stuyvesant is a vast Brooklyn neighborhood filled with historic brownstones. Fans of Victorian architecture will appreciate the striking abodes in the leafy historic district.
Learn more about Bedford-StuyvesantSimilar homes
Prices shown are base rent only and don't include any fees. Visit each listing to see a complete cost breakdown.
Similar Homes looks at ad spend and other factors like location, price, and number of beds and baths.







































































































































