- ft²
15 rooms
6 beds
3 baths
Three-family home
- Ocean Hill
Resale
reported sale
Sold on 4/14/2022
Not yet verified by closing records
Seller's agent
This home has been saved by 17 users.
Listing by Wyllie Real Estate, Limited Liability Broker, 23 Pell Street, New York, NY 10013-4428
Common charges
Not applicable
Estimated payment
$6,485/mo
Legal disclaimerAll calculations are estimates provided by StreetEasy for informational purposes only. Actual amounts or financing terms may vary. Please contact your mortgage provider for specifics.Taxes
$285/mo
Tax abatement
No info
About
Seller’s agent
description
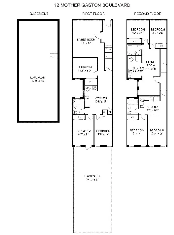
Free market 3-Family Building
5+% Cap Rate
Ground Floor: $2,230 (2.5 bed + basement storage + backyard)
Unit 2-F: $1,800 (currently vacant, floor plan allows for 3rd bedroom)
Unit 2-R- $1,800 (1-bed)
*Rents have not been raised since the building was last purchased in 2017
**Units are sub-metered for electric and gas
Radiators and plumbing were replaced/updated in 2018
Boiler replaced in 2020
2020 EXPENSES
Water:...
Policies
Sorry, policy info isn’t available right now. Check back later.
Home features
Dishwasher
Hardwood floors
Private outdoor space
Garden
Building amenities
No info on building amenities
About the building
12 Mother Gaston Boulevard
12 Mother Gaston Boulevard, Brooklyn, NY 11233
3 units
2 stories
1920 built
For sale
0 available units for saleFor rent
0 available units for rentDocuments and permits
View documents and permitsProperty history
- Price Change: No changes
- Days on market: 105 daysThis is the number of days the listing has been on StreetEasy.
| Date | Price | Event |
|---|---|---|
4/14/2022 | $1,200,000 | Sold by Wyllie Real Estate |
5/27/2021 | $1,200,000 | In contract |
2/11/2021 | $1,200,000 | Listed by Wyllie Real Estate |
Past listing photos
Sign in to take a closer look at how this home compares to similar homes.
Explore Ocean Hill
Transit
| Location | Distance |
|---|---|
JZat Chauncey St | 0.16 miles |
Lat Bushwick Av | 0.21 miles |
ACat Rockaway Av | 0.23 miles |
ACJLat Broadway Junction–East New York | 0.36 miles |
Jat Halsey St | 0.46 miles |
























































































































































