$9,000
For Rent
Base rent only. For total monthly price and additional fees, see .
Rented 8/6/2025
1,243 ft²
$86 per ft²
4 rooms
2 beds
2 baths
Condo
- Lincoln Square
Under NYC law, you can't be charged a broker fee if you didn't hire a broker.
Listed By
This home has been saved by 22 users.
Listing by BLU Real Estate, Limited Liability Broker, 120 Riverside Boulevard, New York, NY 10069
Unavailable
Rented on 8/6/2025
Days on market
15 days
Last price change
No changes
About
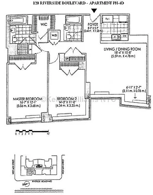
A crown jewel, this 2 bedroom, 2 bathroom Penthouse has beautiful western views of the Hudson River. This luxurious residence has 11 foot floor-to-ceiling windows and black-out electronic curtains. The kitchen has granite counter tops, with a pass-through leading into the living area. The primary suite has a large bathroom that includes a walk-in shower and tub, with the finest finishes.
Policies
Pets allowed
Cats and dogs allowed
Smoke-free
Home features
Central air
Dishwasher
Hardwood floors
View
Park, Water
Washer/dryer
Building amenities
Services and facilities
Bike room
Concierge
Doorman
Full-time
Elevator
Laundry in building
Live-in super
Package room
Parking
Garage, Valet
Storage space
Cold storage, Locker/cage
Wheelchair access
Wellness and recreation
Children's playroom
Gym
Media room
Swimming pool
Shared outdoor space
Roof deck
About the building
120 Riverside Boulevard
120 Riverside Boulevard, New York, NY 10069
276 units
18 stories
2004 built
Property history
Prices shown are base rent only. For total monthly price and additional fees, see .
| Date | Base rent | Event |
|---|---|---|
8/6/2025 | $9,000 | Rented by BLU Real Estate |
6/25/2025 | $9,000 | In contract |
6/10/2025 | $9,000 | Listed by BLU Real Estate |
1/6/2021 | $6,000 | |
10/27/2020 | $6,000 |
Past listing photos
Sign in to take a closer look at how this home compares to similar homes.
Explore Lincoln Square
Transit
| Location | Distance |
|---|---|
1at 66th St–Lincoln Center | 0.39 miles |
123at 72nd St | 0.4 miles |
ABCD1at 59th St–Columbus Circle | 0.6 miles |
BCat 72nd St | 0.63 miles |
1at 79th St | 0.69 miles |
About Lincoln Square
Rental prices shown are base rent before any fees. Visit listings for cost and fees breakdown.
SalesMedian asking price
2 beds
$2.2M
RentalsMedian asking base rent
2 beds
$8,737
Named after and defined by the Lincoln Center for the Performing Arts, Lincoln Square is home to the New York Philharmonic, the New York City Ballet and the Metropolitan Opera, among many other cultural institutions. The neighborhood blends the prewar architecture and and style of the Upper West Side with modern, tall residential buildings. Great subway access at Columbus Circle and proximity to Midtown make this neighborhood popular with those looking to be in the center of it all.
Learn more about Lincoln SquareSimilar homes
Prices shown are base rent only and don't include any fees. Visit each listing to see a complete cost breakdown.
Similar Homes looks at ad spend and other factors like location, price, and number of beds and baths.









































































































































































