$18,500,000
For Sale
No longer available 6/20/2017
- ft²
12 rooms
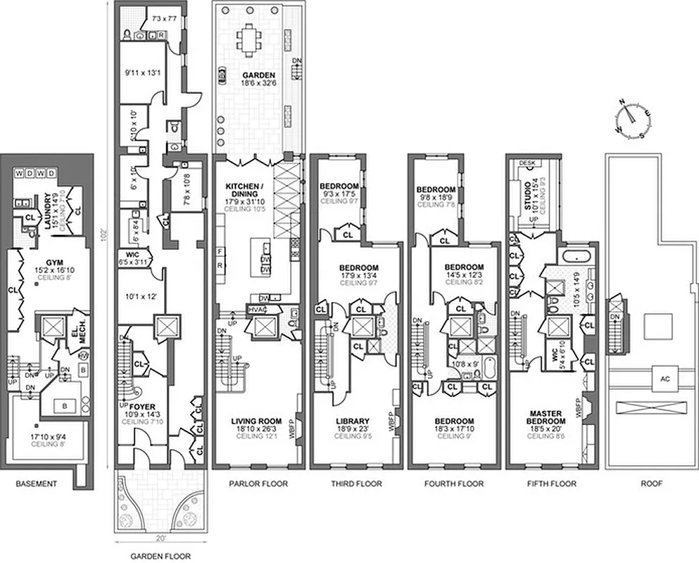
6 beds
5+ baths
Mixed-use building
- Upper East Side
Seller's agent
This home has been saved by 68 users.
Listing by Brown Harris Stevens, Real Estate Principal Office, 445 Park Avenue, New York, NY 10022 | MLS #: 15919163
Common charges
Not applicable
Estimated payment
$92,033/mo
Legal disclaimerAll calculations are estimates provided by StreetEasy for informational purposes only. Actual amounts or financing terms may vary. Please contact your mortgage provider for specifics.Taxes
No info
Tax abatement
No info
About
Seller’s agent
description
URBAN PASTORAL
THE BLOCK
At a time when the Park Avenue railroad could still be seen racing by to pedestrians walking by, before the planted and sculpted median we are so fond of today, 19 townhouses were built along the north side of the double-wide crosstown street of East 79th between Park and Lexington Avenues.
Policies
Sorry, policy info isn’t available right now. Check back later.
Home features
Private outdoor space
Garden, Terrace
Building amenities
Services and facilities
Storage space
Wellness and recreation
Gym
Hot tub
Shared outdoor space
No info on shared outdoor space
About the building
121 East 79th Street
121 East 79th Street, New York, NY 10075
1 unit
5 stories
1920 built
For sale
0 available units for saleFor rent
0 available units for rentDocuments and permits
View documents and permitsProperty history
- Price Change: No changes
- Days on market: 195 daysThis is the number of days the listing has been on StreetEasy.
| Date | Price | Event |
|---|---|---|
6/20/2017 | $18,500,000 | No longer available |
12/7/2016 | $18,500,000 | Listed by Brown Harris Stevens |
Sign in to take a closer look at how this home compares to similar homes.
Explore Upper East Side
Transit
| Location | Distance |
|---|---|
6at 77th St | 0.12 miles |
456at 86th St | 0.33 miles |
Qat 86th St | 0.35 miles |
Qat 72nd St | 0.46 miles |
6at 68th St–Hunter College | 0.58 miles |
About Upper East Side
Rental prices shown are base rent before any fees. Visit listings for cost and fees breakdown.
SalesMedian asking price
6 beds
$15.75M
When many people think of the Upper East Side, they think of a quiet, tree-lined urban expanse filled with posh residents and purebred dogs. There's some reality behind the neighborhood's old-money image: The blocks between Park and Fifth avenues are home to some of Manhattan's wealthiest residents, many of whom dwell in stately co-ops or sleek new condos overseen by stiffly collared doormen.
But there's a lot more happening on the Upper East Side. Museum Mile throngs with tourists, street artists, and lovers of the arts, drawn to its abundance of high culture. And the eastern side of the neighborhood, toward Yorkville, exhibits a less rarefied character. Second Avenue is home to sports bars, pubs, and some excellent restaurants. A trendy renaissance is in the offing here, sparked by young professionals drawn by some surprisingly good housing prices (for Manhattan). The avenues and commerce-lined thoroughfares can be hectic, but many streets on the Upper East Side are blessedly quiet — just one more way in which this oft-stereotyped neighborhood can be a surprise.


































































































































































































