$4,795
For Rent
Base rent only. For total monthly price and additional fees, see .
No longer available 7/26/2024
- ft²
3 rooms
1 bed
1 bath
Rental unit
- NoMad
Under NYC law, you can't be charged a broker fee if you didn't hire a broker.
Listed By
Harlington
This home has been saved by 7 users.
Listing by Harlington | Brokerage Listing ID: 139143
Unavailable
No longer available on 7/26/2024
Days on market
9 days
Last price change
No changes
About
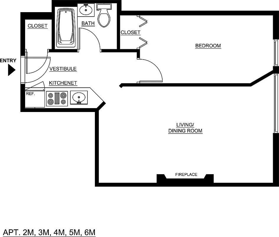
No Fee! Tour this 1 bed (Flex 2) 1 bath apartment in the heart of NoMad!
Features gourmet kitchen equipped with custom white cabinetry, Caesarstone countertops, and stainless steel appliances including dishwasher.
Queen size bedroom. Ample closet space. Spacious living room. Hardwood floors and high ceilings throughout.
Heat and hot water included. Insurent, TheGuarantors, and Rhino accepted.
Policies
Pets allowed
Home features
No info on home features
Building amenities
Services and facilities
Doorman
Elevator
Laundry in building
Live-in super
Package room
Wellness and recreation
No info on wellness and recreation
Shared outdoor space
No info on shared outdoor space
About the building
121 Madison Avenue
121 Madison Avenue, New York, NY 10016
102 units
12 stories
1938 built
Property history
Prices shown are base rent only. For total monthly price and additional fees, see .
| Date | Base rent | Event |
|---|---|---|
7/26/2024 | $4,795 | No longer available |
7/17/2024 | $4,795 | Listed by Harlington |
7/18/2023 | $4,495 | |
7/12/2023 | $4,495 | Price decreased by 8% |
6/30/2023 | $4,895 |
Sign in to take a closer look at how this home compares to similar homes.
Explore NoMad
Transit
| Location | Distance |
|---|---|
6at 33rd St | 0.1 miles |
6at 28th St | 0.13 miles |
RWat 28th St | 0.21 miles |
BDFMNQRWat 34th StâHerald Sq | 0.28 miles |
PATHat 33rd Street Station | 0.33 miles |
Similar homes
Prices shown are base rent only and don't include any fees. Visit each listing to see a complete cost breakdown.
Similar Homes looks at ad spend and other factors like location, price, and number of beds and baths.








































































