$11,800
For Rent
Base rent only. For total monthly price and additional fees, see .
No longer available 7/1/2025
1,700 ft²
$83 per ft²
6 rooms
3 beds
2.5 baths
Rental unit
- Carnegie Hill
Under NYC law, you can't be charged a broker fee if you didn't hire a broker.
Listed By
This home has been saved by 21 users.
Listing by Corcoran, Limited Liability Broker, 157 Columbus Avenue, New York, NY 10023
Unavailable
No longer available on 7/1/2025
Days on market
9 days
Last price change
↓ $700 (-5.6%) on 6/26/25
About
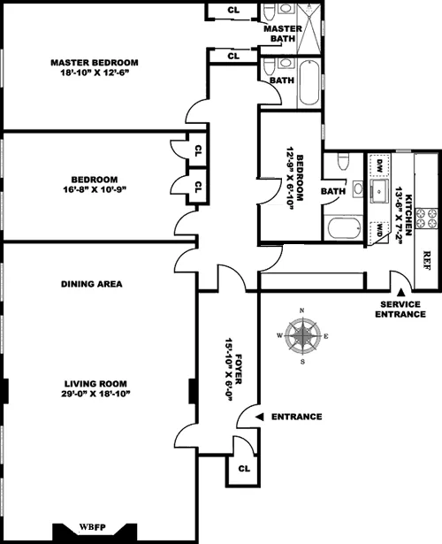
STUNNING “CLASSIC 6” ON PARK AVENUE! Thoughtfully designed space with an open lay out featuring connecting living and dining rooms with loads of windows, overlooking Park Avenue. Renovated kitchen with white quartz counters, stainless steel appliances, custom cabinetry and light grey ceramic flooring. Two large bedrooms (including a Master with en-suite bath) and an additional third room which makes for the perfect home office/guest room.
Policies
Sorry, policy info isn’t available right now. Check back later.
Home features
Dishwasher
Fireplace
Hardwood floors
View
Skyline
Washer/dryer
Building amenities
Services and facilities
Doorman
Elevator
Wellness and recreation
No info on wellness and recreation
Shared outdoor space
No info on shared outdoor space
About the building
1225 Park Avenue
1225 Park Avenue, New York, NY 10128
86 units
16 stories
1925 built
Property history
Prices shown are base rent only. For total monthly price and additional fees, see .
| Date | Base rent | Event |
|---|---|---|
9/30/2025 | $11,800 | No longer available |
7/1/2025 | $11,800 | Temporarily off market |
6/26/2025 | $11,800 | Price decreased by 6% |
6/26/2025 | $12,500 | Listed by Corcoran |
6/24/2025 | $12,500 | Temporarily off market |
Past listing photos
Sign in to take a closer look at how this home compares to similar homes.
Explore Carnegie Hill
Transit
| Location | Distance |
|---|---|
6at 96th St | under 500 feet |
Qat 96th St | 0.29 miles |
6at 103rd St | 0.39 miles |
456at 86th St | 0.45 miles |
Qat 86th St | 0.56 miles |
Similar homes
Prices shown are base rent only and don't include any fees. Visit each listing to see a complete cost breakdown.
Similar Homes looks at ad spend and other factors like location, price, and number of beds and baths.














































































































































































