1,766 ft²
$389 per ft²
6 rooms
2 beds
2.5 baths
Condo
- The Rockaways
Resale
recorded sale
Sold on 2/22/2024
Verified by closing records
Last listed for $699,000
Seller's agents
This home has been saved by 10 users.
Listing by Corcoran, Limited Liability Broker, 125 Seventh Avenue, Brooklyn, NY 11215
Common charges
$370/mo
Estimated payment
$4,523/mo
Legal disclaimerAll calculations are estimates provided by StreetEasy for informational purposes only. Actual amounts or financing terms may vary. Please contact your mortgage provider for specifics.Taxes
$618/mo
Tax abatement
No info
About
Seller’s agent
description
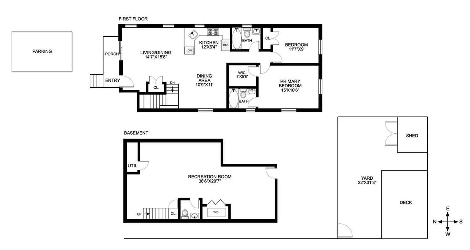
Rarely Available!!
This 1,766sf duplex condo is in mint condition and comes with a huge private backyard, private parking and is just one short block to the beach! Upon entering this unit, you are greeted by a large open floor plan and plenty of sunlight with exposures on all four sides. The first floor has a large living room with sliders out to a private balcony, an open kitchen that boasts granite counters and stainless steel appliances and a large dining room.
Policies
Sorry, policy info isn’t available right now. Check back later.
Home features
Central air
Dishwasher
Hardwood floors
Private outdoor space
Balcony, Garden
View
Garden
Washer/dryer
Building amenities
No info on building amenities
About the building
124-11 Rockaway Beach Boulevard
124-11 Rockaway Beach Boulevard, Rockaway Park, NY 11694
- units
- stories
- built
For sale
0 available units for saleFor rent
0 available units for rentDocuments and permits
View documents and permitsProperty history
- Price Change: ↓ $50,000 (-6.7%) on 10/30/23
- Days on market: 72 daysThis is the number of days the listing has been on StreetEasy.
| Date | Price | Event |
|---|---|---|
2/22/2024 | $687,000 | Sold by Corcoran |
2/22/2024 | $699,000 | No longer available |
12/27/2023 | $699,000 | In contract |
10/30/2023 | $699,000 | Price decreased by 7% |
10/16/2023 | $749,000 | Listed by Corcoran |
Past listing photos
Sign in to take a closer look at how this home compares to similar homes.
Explore The Rockaways
Transit
| Location | Distance |
|---|---|
Sat Rockaway Park–Beach 116th | 0.43 miles |
Sat Beach 105th St | 0.98 miles |
Sat Beach 98th St | 1.36 miles |






























































































































































