$7,750
For Rent
Base rent only. For total monthly price and additional fees, see .
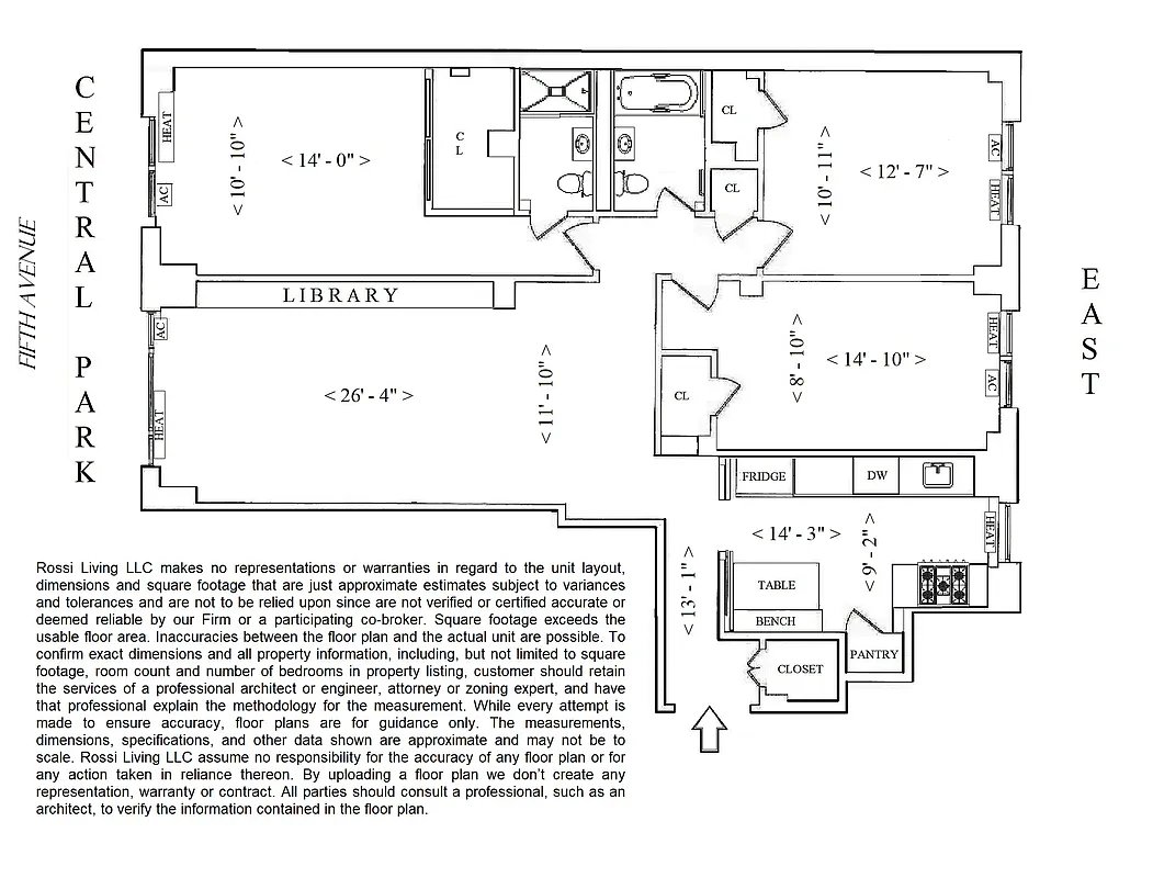
1,300 ft²
$71 per ft²
5 rooms
3 beds
2 baths
Co-op
- Upper Carnegie Hill
Under NYC law, you can't be charged a broker fee if you didn't hire a broker.
Listed By
This home has been saved by 110 users.
Open House
Sun, Dec 7 (12–2 PM ET), by appt only
Listing by Rossi Living, Limited Liability Broker, 575 Lexington Avenue,, New York, NY 10022
Available
Available now
Days on market
157 days
Last price change
↓ $200 (-2.5%) on 9/30/25
About
Sun-Flooded 3-Bedroom Corner Apartment with Panoramic Central Park views.
Welcome to this beautifully renovated, sun-drenched three-bedroom corner apartment with sweeping, unobstructed views of Central Park. Enjoy natural light throughout the day in every room — from serene eastern sunrises to golden sunsets over the park. The expansive living room features breathtaking park and city views, complemented by a custom-built-in library.
Policies
Gifts allowed
Pets allowed
Cats and dogs allowed
Pied-a-terre allowed
Smoke-free
Sublets allowed
Home features
Dishwasher
View
City, Park, Skyline, Water
Building amenities
Services and facilities
Bike room
Doorman
Full-time
Elevator
Laundry in building
Live-in super
Parking
Storage space
Wellness and recreation
No info on wellness and recreation
Shared outdoor space
No info on shared outdoor space
About the building
1270 5th Avenue
1270 5th Avenue, New York, NY 10029
201 units
14 stories
1959 built
Property history
Prices shown are base rent only. For total monthly price and additional fees, see .
| Date | Base rent | Event |
|---|---|---|
9/30/2025 | $7,750 | Price decreased by 3% |
8/10/2025 | $7,950 | Price decreased by 5% |
7/18/2025 | $8,400 | Price decreased by 5% |
7/18/2025 | $8,800 | Listed by Rossi Living |
6/23/2025 | $8,800 | Temporarily off market |
Past listing photos
Sign in to take a closer look at how this home compares to similar homes.
Explore Upper Carnegie Hill
Transit
| Location | Distance |
|---|---|
| 0.25 miles |
| 0.27 miles |
| 0.38 miles |
| 0.43 miles |
| 0.45 miles |
Similar homes
Prices shown are base rent only and don't include any fees. Visit each listing to see a complete cost breakdown.
Similar Homes looks at ad spend and other factors like location, price, and number of beds and baths.























































































































































































































































































