8,766 ft²
$1,910 per ft²
2 rooms
Studio
0 baths
Townhouse
- Lenox Hill
recorded sale
Sold on 4/15/2010
Verified by closing records
Last listed for $16,950,000
Seller's agent
Brown Harris Stevens
This home has been saved by 5 users.
Listing by Brown Harris Stevens, Real Estate Principal Office | MLS #: 158219
Common charges
Not applicable
Estimated payment
$163,827/mo
Legal disclaimerAll calculations are estimates provided by StreetEasy for informational purposes only. Actual amounts or financing terms may vary. Please contact your mortgage provider for specifics.Taxes
$78,911/mo
Tax abatement
No info
About
Seller’s agent
description
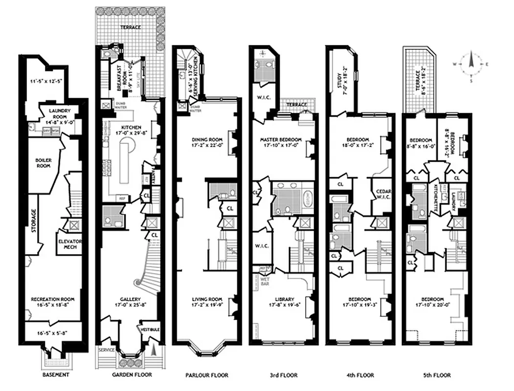
This beautifully - renovated single - family 20' mansion spans 5 stories and is situated on one of the Upper East Side's finest landmarked blocks. Steps from Central Park between Fifth and Madison Avenues, this classic house boasts bay windows facing South on 71st Street with its elegant limestone houses and the Frick Museum Library. An elevator serves all floors and light floods this spacious house with an extension on 4 floors.
Policies
Sorry, policy info isn’t available right now. Check back later.
Home features
No info on home features
Building amenities
Sorry, building amenities aren't available right now. Check back later.
About the building
13 East 71st Street
13 East 71st Street, New York, NY 10021
1 unit
5 stories
1900 built
For sale
0 available units for saleFor rent
0 available units for rentDocuments and permits
View documents and permitsProperty history
- Price Change: ↓ $2,000,000 (-10.6%) on 7/10/09
- Days on market: 79 daysThis is the number of days the listing has been on StreetEasy.
| Date | Price | Event |
|---|---|---|
4/15/2010 | $16,750,000 | Sold by Brown Harris Stevens |
11/9/2010 | $16,750,000 | No longer available |
11/9/2010 | $16,750,000 | In contract |
4/15/2010 | $16,750,000 | Sold by Brown Harris Stevens |
1/26/2010 | $16,950,000 | In contract |
Sign in to take a closer look at how this home compares to similar homes.
Explore Lenox Hill
Transit
| Location | Distance |
|---|---|
6at 68th St–Hunter College | 0.27 miles |
6at 77th St | 0.35 miles |
Qat 72nd St | 0.44 miles |
FQat Lexington Av/63rd St | 0.46 miles |
NRat 59th St | 0.55 miles |











































































































































