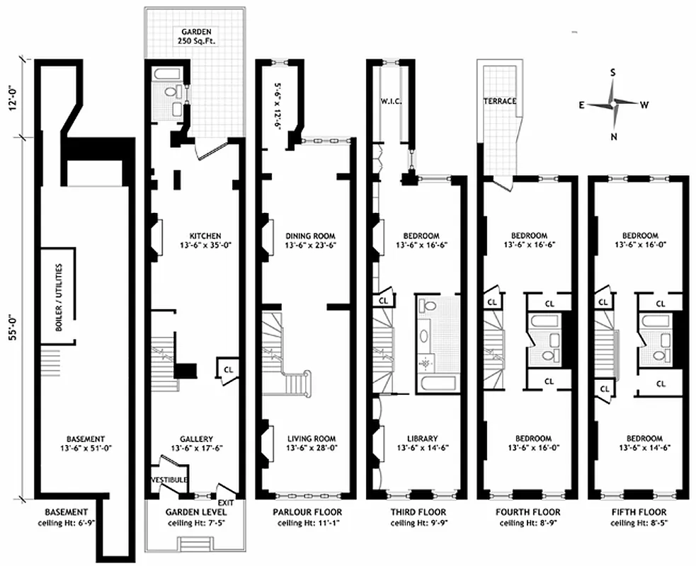
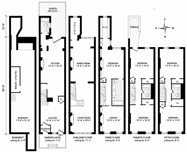
5,400 ft²
$1,342 per ft²
10 rooms
5 beds
4 baths
House
- Lenox Hill
recorded sale
Sold on 12/29/2010
Verified by closing records
Last listed for $7,250,000
Seller's agent
This home has been saved by 16 users.
Listing by Brown Harris Stevens, Real Estate Principal Office, 445 Park Avenue, New York, NY 10022 | MLS #: 35246
Common charges
Not applicable
Estimated payment
Taxes
$43,136/mo
Tax abatement
No info
About
Seller’s agent
description
Located on one of the Upper East Side's finest blocks, this 5-story townhouse has been impeccably renovated throughout and is a vision of brilliant design and master craftsmanship. Spanning approximately 5,400 square feet, this stunning, sun-flooded home has soaring ceilings and pristine hardwood flooring and has been enhanced with the exquisite finishes and appointments.
Policies
Sorry, policy info isn’t available right now. Check back later.
Home features
Private outdoor space
Building amenities
No info on building amenities
About the building
138 East 71st Street
138 East 71st Street, New York, NY 10021
1 unit
5 stories
1910 built
For sale
0 available units for saleFor rent
0 available units for rentDocuments and permits
View documents and permitsProperty history
- Price Change: ↓ $250,000 (-3.3%) on 11/16/10
- Days on market: 454 daysThis is the number of days the listing has been on StreetEasy.
| Date | Price | Event |
|---|---|---|
11/19/2024 | $7,100,000 | |
10/18/2024 | $8,100,000 | |
9/11/2024 | $8,100,000 | |
4/26/2021 | $8,900,000 | |
3/29/2021 | $8,900,000 |
Past listing photos
Sign in to take a closer look at how this home compares to similar homes.
Explore Lenox Hill
Transit
| Location | Distance |
|---|---|
6at 68th St–Hunter College | 0.13 miles |
Qat 72nd St | 0.24 miles |
6at 77th St | 0.32 miles |
FQat Lexington Av/63rd St | 0.37 miles |
NRW456at Lexington Av/59th St | 0.53 miles |


































































































































