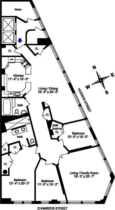
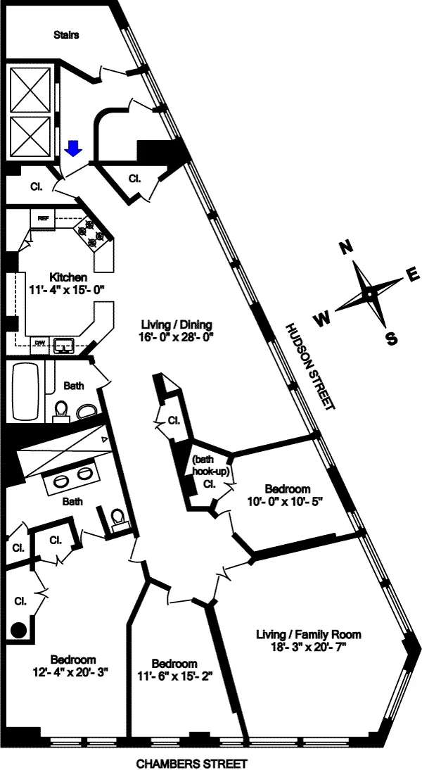
2,000 ft²
$1,100 per ft²
6 rooms
3 beds
2 baths
Co-op
- Tribeca
recorded sale
Sold on 6/11/2010
Verified by closing records
Last listed for $2,000,000
Seller's agents
This home has been saved by 17 users.
Listing by Douglas Elliman, Limited Liability Broker, 140 Franklin Street, New York, NY 10013 | Brokerage Listing ID: 1222272
Maintenance fees
$2,589/mo
Estimated payment
Taxes
Included in maintenance fees
Tax abatement
No info
About
Seller’s agent
Buyer’s agent
description
A real winner! Enjoy trememdous light pouring into this full floor loft distinguished by over-sized windows and views of charming Bogardus Triangle Garden. Unique in prime TriBeCa! A concrete and steel, triangular-shaped, loft building invites innovative use of space and rooms. Flexible layout has a generous kitchen, abundant cabinets and counter space, Sub-Zero refrigerator, Miele dishwasher, and dining area plus a family room and a separate living room.
Policies
Pets allowed
Cats and dogs allowed
Home features
No info on home features
Building amenities
Services and facilities
Elevator
Wellness and recreation
No info on wellness and recreation
Shared outdoor space
No info on shared outdoor space
About the building
139 Chambers Street
139 Chambers Street, New York, NY 10007
10 units
10 stories
1915 built
For sale
0 available units for saleFor rent
0 available units for rentDocuments and permits
View documents and permitsProperty history
- Price Change: No changes
- Days on market: 13 daysThis is the number of days the listing has been on StreetEasy.
| Date | Price | Event |
|---|---|---|
4/14/2022 | $3,275,000 | |
6/11/2010 | $2,200,000 | Sold by Douglas Elliman |
6/11/2010 | $2,000,000 | No longer available |
3/12/2010 | $2,000,000 | In contract |
2/27/2010 | $2,000,000 | Listed by Douglas Elliman |
Past listing photos
Sign in to take a closer look at how this home compares to similar homes.
Explore Tribeca
Transit
| Location | Distance |
|---|---|
123at Chambers St | under 500 feet |
ACE23at Chambers St | under 500 feet |
Eat World Trade Center | 0.16 miles |
RWat City Hall | 0.21 miles |
AC23at Park Place | 0.23 miles |
About Tribeca
Rental prices shown are base rent before any fees. Visit listings for cost and fees breakdown.
SalesMedian asking price
3 beds
$5M
RentalsMedian asking base rent
3 beds
$19,000
Tribeca is an upscale neighborhood known for high-end real estate and well-heeled residents — a downtown haven for European cars and pedigreed dogs. It's also a truly gorgeous area that mixes glorious old cast-iron lofts, wide cobblestone streets, and dramatic new buildings. Decades ago, these lofts housed artists and squatters. But the bohemians have given way to cool-seekers with bigger bank accounts. Now, this neighborhood is among the most expensive places to live in the city. That hasn't cost the neighborhood much of its sophistication, though. Nightlife in Tribeca remains busy but refined, attracting a cosmopolitan crowd with an appreciation for the finer things in life.
Learn more about Tribeca






































































































































