$15,000
For Rent
Base rent only. For total monthly price and additional fees, see .
Rented 6/25/2024
2,700 ft²
$66 per ft²
9 rooms
5 beds
2.5 baths
Three-family home
- Brooklyn Heights
Under NYC law, you can't be charged a broker fee if you didn't hire a broker.
Listed By
This home has been saved by 33 users.
Listing by Brown Harris Stevens, Real Estate Principal Office, 129 Montague Street, Brooklyn, NY 11201
Unavailable
Rented on 6/25/2024
Days on market
12 days
Last price change
No changes
About
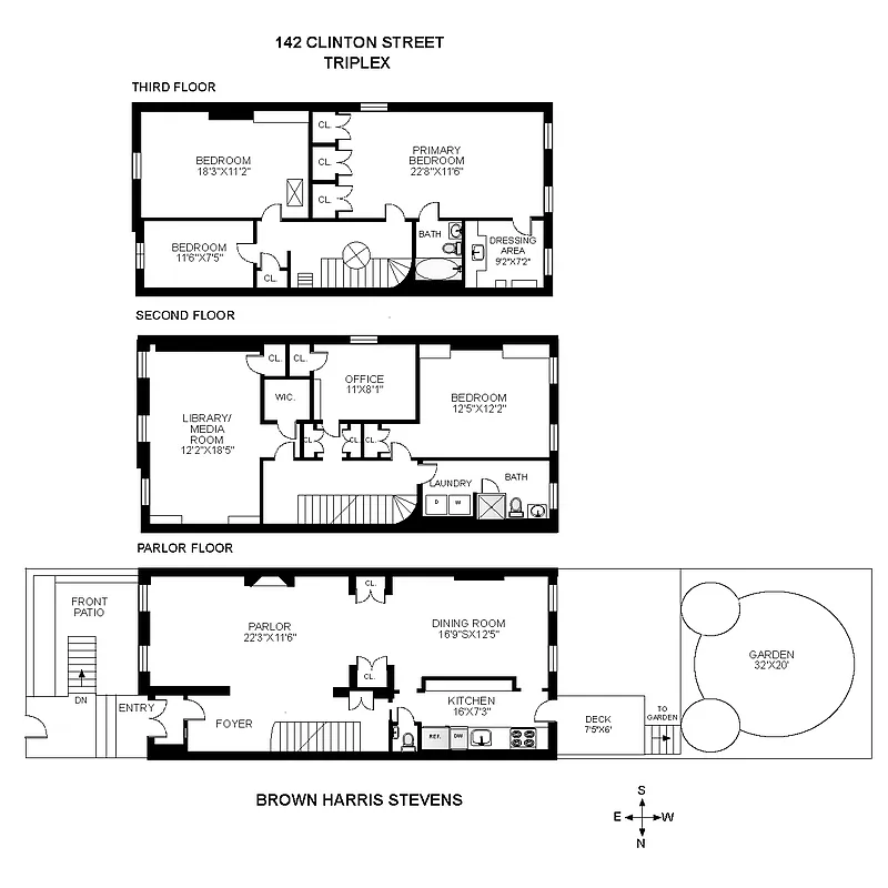
First time available as a rental. The top three floors of this beautiful townhouse encompass 2,700 SF of living space and include the lovely private rear garden accessed off the kitchen deck.
The gated front yard leads to the magnificent entry way doors and with an inner lobby door, a place to leave shoes and bags. The grand parlor floor has floor to ceiling windows letting light flood in.
Policies
Sorry, policy info isn’t available right now. Check back later.
Home features
Hardwood floors
Private outdoor space
Garden
View
City, Garden
Washer/dryer
Building amenities
Services and facilities
Laundry in building
Wellness and recreation
No info on wellness and recreation
Shared outdoor space
No info on shared outdoor space
About the building
142 Clinton Street
142 Clinton Street, Brooklyn, NY 11201
3 units
3 stories
1899 built
For rent
0 available units for rentProperty history
Prices shown are base rent only. For total monthly price and additional fees, see .
| Date | Base rent | Event |
|---|---|---|
6/25/2024 | $15,000 | Rented by Brown Harris Stevens |
6/13/2024 | $15,000 | Listed by Brown Harris Stevens |
Past listing photos
Sign in to take a closer look at how this home compares to similar homes.
Explore Brooklyn Heights
Transit
| Location | Distance |
|---|---|
R2345at Borough Hall/Court St | 0.13 miles |
ACFRat Jay St–MetroTech | 0.32 miles |
23at Clark St | 0.36 miles |
FGat Bergen St | 0.41 miles |
23at Hoyt St | 0.44 miles |
About Brooklyn Heights
Rental prices shown are base rent before any fees. Visit listings for cost and fees breakdown.
SalesMedian asking price
5 beds
$7.45M
RentalsMedian asking base rent
5 beds
$38,000
Brooklyn Heights is known for its gorgeous housing stock and its impressive backdrop. The Promenade is the neighborhood's most celebrated and popular public space, offering just about the best views of the Brooklyn Bridge and the Manhattan skyline that can be found. There, you're likely to find locals walking their Westies, kids zooming around on scooters, and tourists excitedly snapping pics — every one of them savoring the views from this prime perch of a neighborhood.
Learn more about Brooklyn HeightsSimilar homes
Prices shown are base rent only and don't include any fees. Visit each listing to see a complete cost breakdown.
Similar Homes looks at ad spend and other factors like location, price, and number of beds and baths.


































































































































































