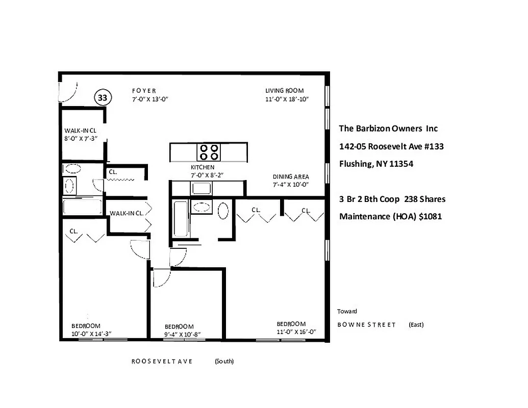
1,300 ft²
$407 per ft²
6 rooms
3 beds
2 baths
Co-op
- Flushing
Resale
recorded sale
Sold on 7/23/2024
Verified by closing records
Last listed for $609,000
Seller's agent
This home has been saved by 24 users.
Listing by Winzone Realty Inc, Corporate Broker, 81-15 Queens Boulevard Ste, Elmhurst, NY 11373
Maintenance fees
$1,178/mo
Estimated payment
$4,264/mo
Legal disclaimerAll calculations are estimates provided by StreetEasy for informational purposes only. Actual amounts or financing terms may vary. Please contact your mortgage provider for specifics.Taxes
Included in maintenance fees
Tax abatement
No info
About
Seller’s agent
Buyer’s agent
description
Amazing Unit in a Perfect Location-Flushing downtown, Facing South and East Corner 3 Br 2 Bath sun-Filled, Mint Condition unit with Solid Hardwood Floor, Lots of Closets, 8 am-12 am Dorman Private Courtyard, Parking Available Short Waiting, Walking Distance to Subway #7, LIRR, Buses, Macy's, Skyview Shopping Mall, Tangram Shopping Mall, Ethic Restaurants, H Mark next door and More!!! (ML#3455642)
Policies
Sorry, policy info isn’t available right now. Check back later.
Home features
Hardwood floors
Building amenities
Services and facilities
Bike room
Concierge
Doorman
Full-time
Laundry in building
Live-in super
Package room
Parking
Garage
Wheelchair access
Wellness and recreation
No info on wellness and recreation
Shared outdoor space
Courtyard
About the building
142-05 Roosevelt Avenue
142-05 Roosevelt Avenue, Flushing, NY 11354
228 units
6 stories
1965 built
For sale
5 available units for saleFor rent
0 available units for rentDocuments and permits
View documents and permitsProperty history
- Price Change: ↓ $9,000 (-1.5%) on 3/17/23
- Days on market: 274 daysThis is the number of days the listing has been on StreetEasy.
| Date | Price | Event |
|---|---|---|
7/23/2024 | $530,000 | Sold by Winzone Realty Inc |
10/31/2023 | $609,000 | Delisted by Winzone Realty Inc |
3/17/2023 | $609,000 | Price decreased by 1% |
1/30/2023 | $618,000 | Listed by Winzone Realty Inc |
Past listing photos
Sign in to take a closer look at how this home compares to similar homes.
Explore Flushing
Transit
| Location | Distance |
|---|---|
7at Flushing–Main St | 0.15 miles |
LIRRat Flushing Main Street | 0.36 miles |
LIRRat Murray Hill | 0.61 miles |
LIRRat Mets–Willets Point | 1.1 miles |
7at Mets–Willets Point | 1.12 miles |














































































































































































































