- ft²
14 rooms
6 beds
4 baths
House
- Cobble Hill
reported sale
Sold on 3/9/2010
Not yet verified by closing records
Seller's agent
This home has been saved by 10 users.
Listing by Brown Harris Stevens, Real Estate Principal Office, 129 Montague Street, Brooklyn, NY 11201 | MLS #: 186319
Common charges
Not applicable
Estimated payment
$14,753/mo
Legal disclaimerAll calculations are estimates provided by StreetEasy for informational purposes only. Actual amounts or financing terms may vary. Please contact your mortgage provider for specifics.Taxes
No info
Tax abatement
No info
About
Seller’s agent
description
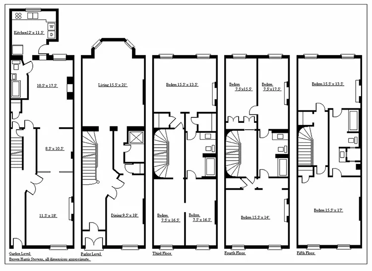
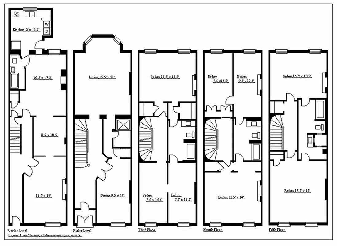
This 5 story 4 family brownstone, used as a grand 1 family in prime Cobble Hill, offers wonderful living with amazing space! The brownstone facade has just been meticulously redone in a deep natural dark brownstone. The garden level boasts a large kitchen ready for a new touch; the kitchen leads out to a lovely private garden. On this floor you also have a formal dining room, den/office plus a family room.
Policies
Sorry, policy info isn’t available right now. Check back later.
Home features
No info on home features
Building amenities
No info on building amenities
About the building
143 Amity Street
143 Amity Street, Brooklyn, NY 11201
1 unit
4 stories
1900 built
For sale
0 available units for saleFor rent
0 available units for rentDocuments and permits
View documents and permitsProperty history
- Price Change: ↓ $455,000 (-13.2%) on 9/22/09
- Days on market: 232 daysThis is the number of days the listing has been on StreetEasy.
| Date | Price | Event |
|---|---|---|
3/8/2010 | $2,250,000 | |
1/14/2016 | $2,995,000 | Sold by Brown Harris Stevens |
3/9/2010 | $2,995,000 | No longer available |
1/15/2010 | $2,995,000 | In contract |
1/7/2010 | $2,995,000 | Listed by Brown Harris Stevens |
Sign in to take a closer look at how this home compares to similar homes.
Explore Cobble Hill
Transit
| Location | Distance |
|---|---|
R2345at Borough Hall/Court St | 0.32 miles |
FGat Bergen St | 0.32 miles |
ACFRat Jay St–MetroTech | 0.48 miles |
ACGat Hoyt & Schermerhorn | 0.51 miles |
23at Hoyt St | 0.55 miles |
About Cobble Hill
Rental prices shown are base rent before any fees. Visit listings for cost and fees breakdown.
SalesMedian asking price
6 beds
$5.85M
Cobble Hill is a beautiful, historic neighborhood with some of the borough's most expensive real estate. Despite the abundance of seven-figure homes, Cobble Hill has small-town vibe evident in the mom-and-pop stores and Italian influences that dot Court Street. Walk down the sunny commercial strip and you'll pass the local butcher, the baker and the fishmonger — all family-run and equally popular among local residents and foodies from far and wide.
On the side streets, the homes tend to be large brick townhouses and brownstones owned by single families, with well-kept facades and window boxes. This is a neighborhood where homeownership is a luxury, and residents take that responsibility to heart. The blocks are clean, the community associations active, and the lifestyle warm and genteel.









































































































































































