View this home virtually
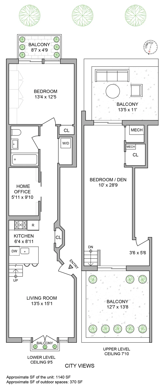
1,140 ft²
$876 per ft²
4 rooms
2 beds
1 bath
Condo
- Bedford-Stuyvesant
Resale
reported sale
Sold on 7/18/2021
Not yet verified by closing records
Seller's agents
This home has been saved by 274 users.
Listing by Compass, Corporate Broker, 10 East 53rd Street, New York, NY 10022
Common charges
$422/mo
Estimated payment
$5,646/mo
Legal disclaimerAll calculations are estimates provided by StreetEasy for informational purposes only. Actual amounts or financing terms may vary. Please contact your mortgage provider for specifics.Taxes
$69/mo
Tax abatement
No info
About
Seller’s agent
description
Welcome home to indoor-outdoor living in this excellent condition, loft style, duplex condo with four private outdoor spaces. The entry level living room includes views over townhouses with French doors to a Juliet balcony bringing in plentiful natural light. The open kitchen features stone countertops and stainless steel appliances with a spacious breakfast bar.
Policies
Sorry, policy info isn’t available right now. Check back later.
Home features
Central air
Dishwasher
Hardwood floors
Private outdoor space
Balcony, Terrace
View
City, Skyline
Washer/dryer
Building amenities
No info on building amenities
About the building
144 Clifton Place
144 Clifton Place, Brooklyn, NY 11238
- units
- stories
- built
For sale
0 available units for saleFor rent
0 available units for rentDocuments and permits
View documents and permitsProperty history
- Price Change: ↓ $91,000 (-8.3%) on 10/30/20
- Days on market: 235 daysThis is the number of days the listing has been on StreetEasy.
| Date | Price | Event |
|---|---|---|
7/18/2021 | $999,000 | Sold by Compass |
3/12/2021 | $999,000 | In contract |
10/30/2020 | $999,000 | Price decreased by 8% |
9/17/2020 | $1,090,000 | Price decreased by 8% |
7/20/2020 | $1,190,000 | Listed by Compass |
Past listing photos
Sign in to take a closer look at how this home compares to similar homes.
Explore Bedford-Stuyvesant
Transit
| Location | Distance |
|---|---|
Gat Classon Av | under 500 feet |
Gat Bedford–Nostrand Avs | 0.2 miles |
Gat Clinton–Washington Avs | 0.36 miles |
Cat Clinton & Washington Avs | 0.45 miles |
ACSat Franklin Av | 0.5 miles |
About Bedford-Stuyvesant
Rental prices shown are base rent before any fees. Visit listings for cost and fees breakdown.
SalesMedian asking price
2 beds
$1.2M
RentalsMedian asking base rent
2 beds
$3,700
Bedford-Stuyvesant is a vast Brooklyn neighborhood filled with historic brownstones. Fans of Victorian architecture will appreciate the striking abodes in the leafy historic district.
Learn more about Bedford-Stuyvesant


























































































































