$10,995
For Rent
Base rent only. For total monthly price and additional fees, see .
Rented 7/15/2025
- ft²
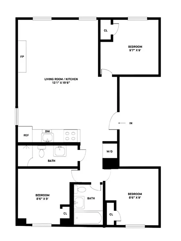
6 rooms
3 beds
2 baths
Rental unit
- West Village
Under NYC law, you can't be charged a broker fee if you didn't hire a broker.
Listed By
This home has been saved by 51 users.
Listing by REAL New York, Limited Liability Broker, 29 West 30th Street, New York, NY 10001
Unavailable
Rented on 7/15/2025
Days on market
17 days
Last price change
↑ $145 (+1.3%) on 7/15/25
About
*This is a gorgeous, newly renovated TRUE 3BR/2BA with in-unit washer and dryer, hardwood floors and exposed brick.*
Available for *AUGUST 1st* occupancy (still occupied - not available sooner).
*Apartment features:*
- Newly renovated
- Three bedrooms
- Two marble bathrooms
- In-unit laundry
- Updated kitchen with stainless steel appliances
- White oak hardwood floors
- Exposed brick
- Recessed lighting
Located...
Policies
Sorry, policy info isn’t available right now. Check back later.
Home features
Central air
Dishwasher
Hardwood floors
View
City
Washer/dryer
Building amenities
Sorry, building amenities aren't available right now. Check back later.
About the building
147 Christopher Street
147 Christopher Street, New York, NY 10014
- units
- stories
- built
Property history
Prices shown are base rent only. For total monthly price and additional fees, see .
| Date | Base rent | Event |
|---|---|---|
7/15/2025 | $10,995 | Rented by REAL New York |
7/15/2025 | $10,995 | Price increased by 1% |
7/12/2025 | $10,850 | In contract |
6/25/2025 | $10,850 | Listed by REAL New York |
7/12/2024 | $10,350 |
Past listing photos
Sign in to take a closer look at how this home compares to similar homes.
Explore West Village
Transit
| Location | Distance |
|---|---|
PATHat Christopher Street Station | under 500 feet |
1at Christopher St–Sheridan Sq | 0.25 miles |
1at Houston St | 0.32 miles |
ABCDEFMat West 4th St | 0.35 miles |
PATHat 9th Street Station | 0.47 miles |
About West Village
Rental prices shown are base rent before any fees. Visit listings for cost and fees breakdown.
SalesMedian asking price
3 beds
$6.62M
RentalsMedian asking base rent
3 beds
$9,497
Picture a romantic comedy set in New York City: The heroine invariably lives in a cozy walk-up on a cobblestone street in a neighborhood with cute boutiques and trendy cafes on every corner. This movie is set in the West Village. In reality, the West Village is just as picturesque: The neighborhood is tucked between Greenwich Village and the Hudson River and is one of the quietest and most sophisticated pockets of Downtown Manhattan. Primarily residential, with a distinct lack of office buildings, the leafy, off-the-grid streets are peaceful during the day but get livelier at night. That's when well-heeled residents, fashionistas, and literati can all be found mingling over oysters at the area's many low-lit cocktail bars.
Learn more about West VillageSimilar homes
Prices shown are base rent only and don't include any fees. Visit each listing to see a complete cost breakdown.
Similar Homes looks at ad spend and other factors like location, price, and number of beds and baths.
































































































