$5,300
For Rent
Base rent only. For total monthly price and additional fees, see .
Rented 11/12/2024
- ft²
1 room
1 bed
1 bath
Co-op
- Soho
Under NYC law, you can't be charged a broker fee if you didn't hire a broker.
Listed By
This home has been saved by 34 users.
Listing by Cooper & Cooper Real Estate, Limited Liability Broker, 1 Penn Plaza, New York, NY 10119
Unavailable
Rented on 11/12/2024
Days on market
15 days
Last price change
No changes
About
*LEASES SIGNED*
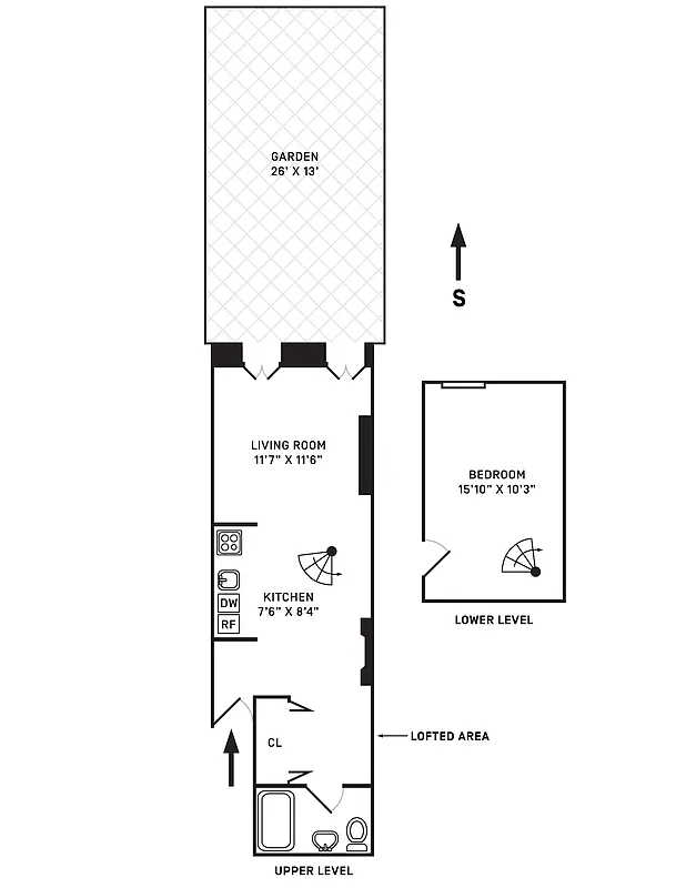
Recently Renovated, Spacious SoHo Duplex Loft with Private Garden / Backyard. Prime SoHo Location. Only Three Blocks to Washington Square Park. Laundromat Next Door.*
*NOTE: ALL SHOWINGS, INCUDING OPEN HOUSES, ARE BY APPOINTMENT ONLY. In-Person and Virtual Tours Available.*
This incredible duplex loft home occupies the first floor and lower level of this gorgeous pre-war building.
Policies
Parents buying allowed
Sublets allowed
Home features
Dishwasher
Hardwood floors
Private outdoor space
Garden
View
Garden
Building amenities
Sorry, building amenities aren't available right now. Check back later.
About the building
147 Sullivan Street
147 Sullivan Street, New York, NY 10012
20 units
5 stories
1920 built
Property history
Prices shown are base rent only. For total monthly price and additional fees, see .
| Date | Base rent | Event |
|---|---|---|
11/12/2024 | $5,300 | Rented by Cooper & Cooper Real Estate |
10/28/2024 | $5,300 | In contract |
10/13/2024 | $5,300 | Listed by Cooper & Cooper Real Estate |
1/20/2023 | $5,200 | |
1/15/2023 | $5,200 |
Past listing photos
Sign in to take a closer look at how this home compares to similar homes.
Explore Soho
Transit
| Location | Distance |
|---|---|
CEat Spring St | 0.14 miles |
1at Houston St | 0.2 miles |
RWat Prince St | 0.27 miles |
ABCDEFMat West 4th St | 0.28 miles |
BDFM6at BroadwayâLafayette St | 0.29 miles |
About Soho
Rental prices shown are base rent before any fees. Visit listings for cost and fees breakdown.
SalesMedian asking price
1 bed
$2M
RentalsMedian asking base rent
1 bed
$4,995
SoHo has some of the best people-watching in Manhattan, as it is a mecca for the trendy, sophisticated downtown elite. The north-south running streets are often sites of fashion shoots as well as home to upscale European boutiques. The east-west running streets are busier and always clogged with vendors selling everything from iPhone cases to incense. One you hit Broadway, you could be in just about any mall in America with retail chains, tourists, teenagers, and disgruntled New Yorkers dominating the avenue. The energy in SoHo is fast-paced and all hustle and bustle; it is a quintessentially vibrant New York neighborhood, but certainly not for the faint-of-heart or those looking for some peace and quiet.
Learn more about SohoSimilar homes
Prices shown are base rent only and don't include any fees. Visit each listing to see a complete cost breakdown.
Similar Homes looks at ad spend and other factors like location, price, and number of beds and baths.






































