5,900 ft²
$2,533 per ft²
2 rooms
Studio
0 baths
House
- West Village
reported sale
Sold on 6/10/2014
Not yet verified by closing records
Seller's agent
This home has been saved by 18 users.
Listing by Brown Harris Stevens, Real Estate Principal Office, 110 5th Avenue, New York, NY 10011 | MLS #: 9770846
Common charges
Not applicable
Estimated payment
$77,572/mo
Legal disclaimerAll calculations are estimates provided by StreetEasy for informational purposes only. Actual amounts or financing terms may vary. Please contact your mortgage provider for specifics.Taxes
No info
Tax abatement
No info
About
Seller’s agent
description
CONTRACT SIGNED
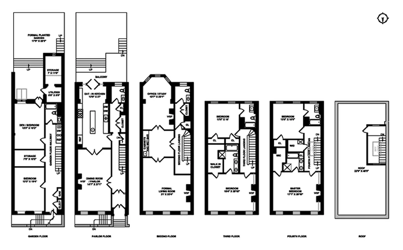
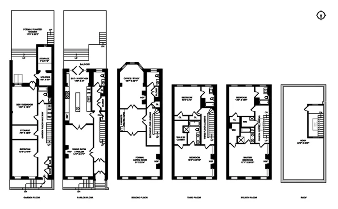
154 Waverly Place is a stunning 22.5' wide Greek revival townhouse dating back to 1839. Spanning five stories with nearly 6,000sf of interior space and 2000sf of exterior space, this home has been lovingly restored by its current owners and maintains much of its original charm. In total, 154 Waverly boasts six large bedrooms, five full bathrooms and 2 powder rooms.
Policies
Sorry, policy info isn’t available right now. Check back later.
Home features
Private outdoor space
Garden, Terrace
Building amenities
Services and facilities
Laundry in building
Wellness and recreation
No info on wellness and recreation
Shared outdoor space
No info on shared outdoor space
About the building
154 Waverly Place
154 Waverly Place, New York, NY 10014
1 unit
4 stories
1915 built
For sale
0 available units for saleFor rent
0 available units for rentDocuments and permits
View documents and permitsProperty history
- Price Change: No changes
- Days on market: 46 daysThis is the number of days the listing has been on StreetEasy.
| Date | Price | Event |
|---|---|---|
4/19/2015 | $14,950,000 | Sold by Brown Harris Stevens |
6/10/2014 | $14,950,000 | No longer available |
4/30/2014 | $14,950,000 | In contract |
3/15/2014 | $14,950,000 | Listed by Brown Harris Stevens |
5/29/2014 | $14,800,000 |
Past listing photos
Sign in to take a closer look at how this home compares to similar homes.
Explore West Village
Transit
| Location | Distance |
|---|---|
ABCDEFMat West 4th St | under 500 feet |
1at Christopher St–Sheridan Sq | under 500 feet |
PATHat 9th Street Station | 0.14 miles |
FLM123at 14th St | 0.28 miles |
PATHat Christopher Street Station | 0.3 miles |
About West Village
Rental prices shown are base rent before any fees. Visit listings for cost and fees breakdown.
SalesMedian asking price
Studio
$622K
RentalsMedian asking base rent
Studio
$4,200
Picture a romantic comedy set in New York City: The heroine invariably lives in a cozy walk-up on a cobblestone street in a neighborhood with cute boutiques and trendy cafes on every corner. This movie is set in the West Village. In reality, the West Village is just as picturesque: The neighborhood is tucked between Greenwich Village and the Hudson River and is one of the quietest and most sophisticated pockets of Downtown Manhattan. Primarily residential, with a distinct lack of office buildings, the leafy, off-the-grid streets are peaceful during the day but get livelier at night. That's when well-heeled residents, fashionistas, and literati can all be found mingling over oysters at the area's many low-lit cocktail bars.
Learn more about West Village

























































































































































































