View this home virtually
4,300 ft²
$2,686 per ft²
10 rooms
5 beds
5.5 baths
Condo
- Lenox Hill
Resale
recorded sale
Sold on 11/3/2021
Verified by closing records
Last listed for $11,950,000
Seller's agent
This home has been saved by 182 users.
Listing by Sloane Square, Limited Liability Broker, 14 East 60th Street, New York, NY 10022
Common charges
$8,767/mo
Estimated payment
$91,057/mo
Legal disclaimerAll calculations are estimates provided by StreetEasy for informational purposes only. Actual amounts or financing terms may vary. Please contact your mortgage provider for specifics.Taxes
$8,128/mo
Tax abatement
No info
About
Seller’s agent
description
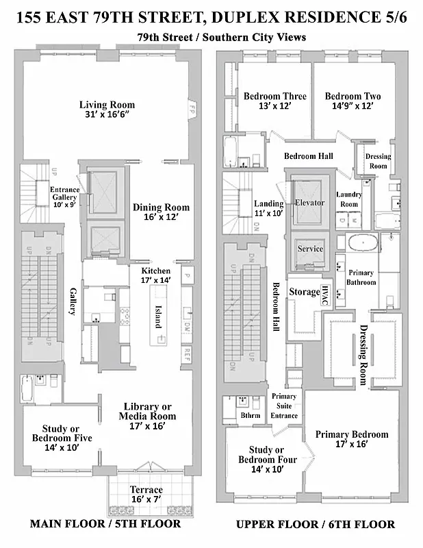
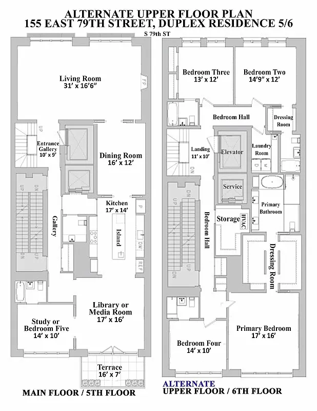
This sensational XXX Mint 5 Bedroom / 5.5 Bathrooms, approximately 4,300’ Duplex Condominium Apartment spans the entire 5th and 6th floors of 155 East 79th Street; a new, full-service boutique building which opened in 2016.
The Apartments at 155 East 79th Street were architecturally developed to maximize an abundance of natural light with an open floorplan that includes pocket doors for private space when desired.
Policies
Sorry, policy info isn’t available right now. Check back later.
Home features
Central air
Dishwasher
Fireplace
Wood
Hardwood floors
Private outdoor space
Balcony, Terrace
View
City, Skyline
Washer/dryer
Building amenities
Services and facilities
Bike room
Doorman
Elevator
Live-in super
Package room
Storage space
Locker/cage
Wellness and recreation
Gym
Shared outdoor space
No info on shared outdoor space
About the building
155 East 79th Street
155 East 79th Street, New York, NY 10075
7 units
14 stories
2014 built
For sale
1 available units for saleFor rent
0 available units for rentDocuments and permits
View documents and permitsProperty history
- Price Change: No changes
- Days on market: 323 daysThis is the number of days the listing has been on StreetEasy.
| Date | Price | Event |
|---|---|---|
5/1/2025 | $11,750,000 | |
11/3/2021 | $11,550,000 | Sold by Sloane Square |
9/9/2021 | $11,950,000 | In contract |
10/21/2020 | $11,950,000 | Listed by Sloane Square |
4/10/2017 | $12,577,637 |
Past listing photos
Sign in to take a closer look at how this home compares to similar homes.
Explore Lenox Hill
Transit
| Location | Distance |
|---|---|
6at 77th St | 0.11 miles |
Qat 86th St | 0.3 miles |
456at 86th St | 0.33 miles |
Qat 72nd St | 0.42 miles |
6at 68th St–Hunter College | 0.57 miles |















































































































































































