View this home virtually
$3,300
For Rent
Base rent only. For total monthly price and additional fees, see .
Rented 12/25/2022
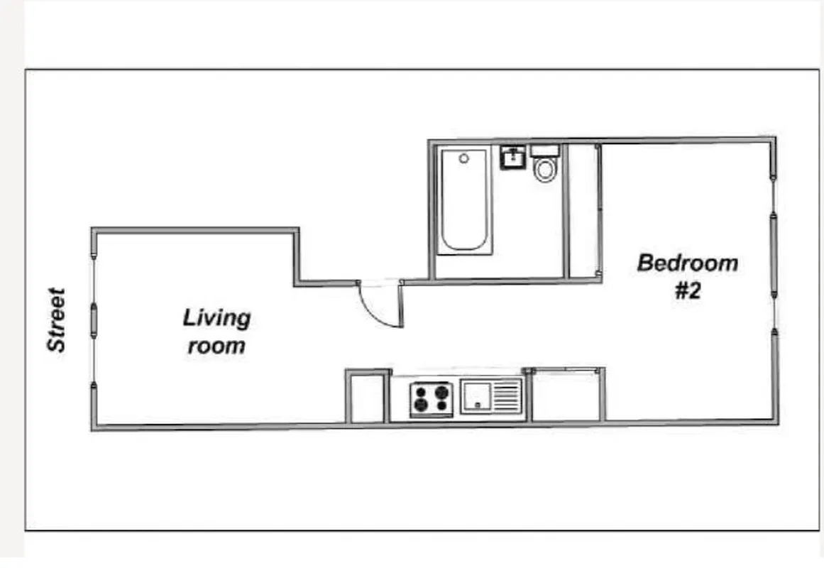
1,000 ft²
$39 per ft²
6 rooms
2 beds
1.5 baths
Two-family home
- South Harlem
Under NYC law, you can't be charged a broker fee if you didn't hire a broker.
Listed By
This home has been saved by 21 users.
Listing by Compass, Corporate Broker, 2150 Broadway, New York, NY 10023
Unavailable
Rented on 12/25/2022
Days on market
16 days
Last price change
No changes
About
DUPLEX 2 BED, 1.5 BATH AVAILABLE FEB 1, 2023. Don't miss this unique opportunity to live in a duplex brownstone apartment on a gorgeous block in Central Harlem! The apartment has a total of 1,000 sq feet with very spacious king sized bedrooms, washer dryer in unit, 1.5 bathrooms, incredible light with northern and southern exposures, and very importantly excellent, attentive, small management.
Policies
Sorry, policy info isn’t available right now. Check back later.
Home features
Washer/dryer
Building amenities
No info on building amenities
About the building
158 West 123rd Street
158 West 123rd Street, New York, NY 10027
2 units
4 stories
1910 built
Property history
Prices shown are base rent only. For total monthly price and additional fees, see .
| Date | Base rent | Event |
|---|---|---|
12/25/2022 | $3,300 | Rented by Compass |
12/9/2022 | $3,300 | Listed by Compass |
6/20/2021 | $3,000 | |
5/25/2021 | $3,000 | |
4/28/2016 | $2,800 |
Past listing photos
Sign in to take a closer look at how this home compares to similar homes.
Explore South Harlem
Transit
| Location | Distance |
|---|---|
23at 125th St | 0.16 miles |
ABCDat 125th St | 0.31 miles |
23at 116th St | 0.35 miles |
BCat 116th St | 0.38 miles |
23at 110th St–Central Park North | 0.59 miles |
Similar homes
Prices shown are base rent only and don't include any fees. Visit each listing to see a complete cost breakdown.
Similar Homes looks at ad spend and other factors like location, price, and number of beds and baths.


















































































