$4,400
for rent
Base rent only. For total monthly price and additional fees, see .
- ft²
5 rooms
3 beds
2 baths
Two-family home
- Weeksville
Under NYC law, you can't be charged a broker fee if you didn't hire a broker.
Listed by
This home has been saved by 3 users.
3 Open houses
4:45–5:30 PM ET
By appt only
Listing by Platinum Forbes Global Properties, Corporate Broker, 100 Wall Street, New York, NY 10005-3701
Available
Available now
Days on market
0 days
Last price change
No changes
About
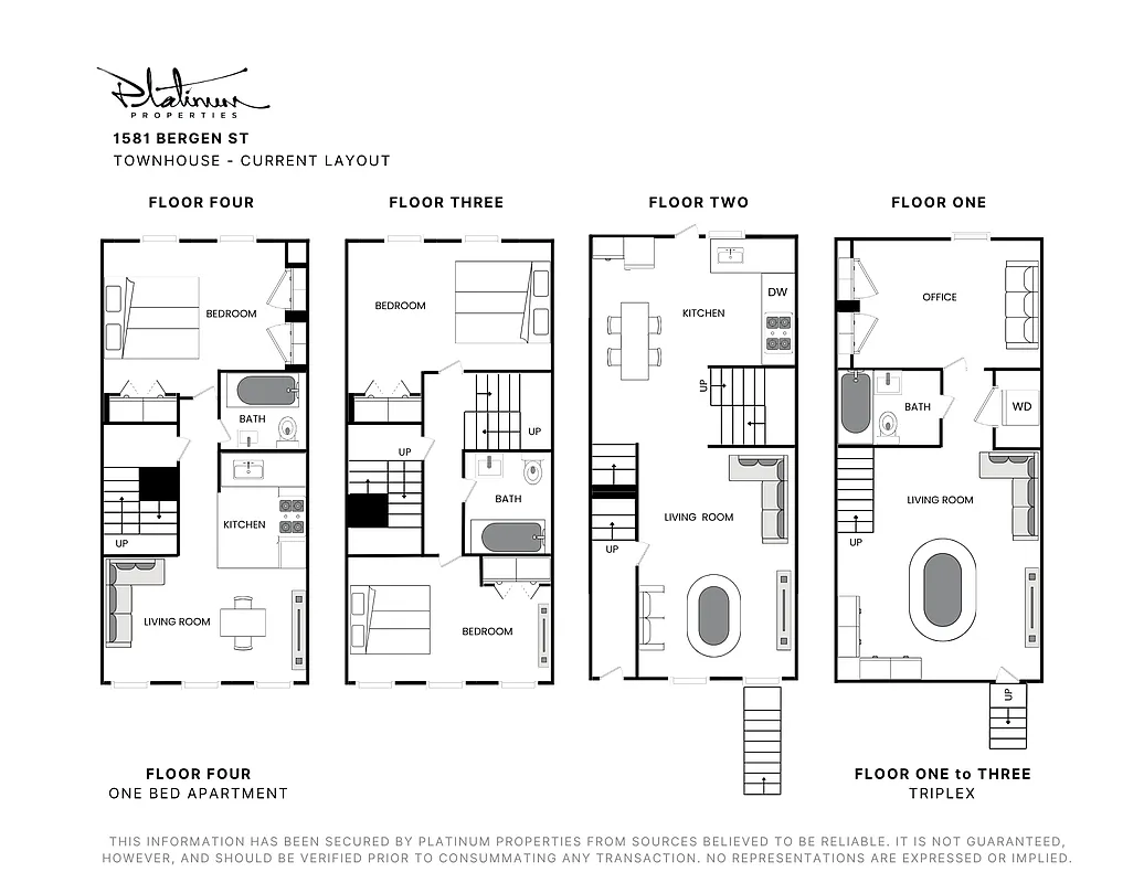
Welcome home to 1581 Bergen Street, #1, an intelligently configured TRIPLEX standing on an expansive 107' lot, this home perfectly balances comfortable living immediately while holding tremendous opportunity in a rapidly ascending section of Brooklyn.
A bright two-bedroom plus home-office, two-bath garden triplex with north and south exposure that seamlessly flows between levels for everyday living and entertaining.
Policies
Sorry, policy info isn’t available right now. Check back later.
Home features
Central air
Dishwasher
Hardwood floors
Private outdoor space
Garden
Washer/dryer
Building amenities
Services and facilities
No info on services and facilities
Wellness and recreation
No info on wellness and recreation
Shared outdoor space
Courtyard
About the building
1581 Bergen Street
1581 Bergen Street, Brooklyn, NY 11213
2 units
2 stories
1920 built
Property history
Prices shown are base rent only. For total monthly price and additional fees, see .
| Date | Base rent | Event |
|---|---|---|
5/27/2026 | $4,400 | Listed by Platinum Forbes Global Properties |
Sign in to take a closer look at how this home compares to similar homes.
Explore Weeksville
Transit
| Location | Distance |
|---|---|
ACat Utica Av | 0.27 miles |
34at Utica Av | 0.44 miles |
ACat Ralph Av | 0.55 miles |
ACat Kingston–Throop | 0.58 miles |
3at Kingston Av | 0.7 miles |
Similar homes
Prices shown are base rent only and don't include any fees. Visit each listing to see a complete cost breakdown.
Similar Homes looks at ad spend and other factors like location, price, and number of beds and baths.




























































































