$3,400
For Rent
Base rent only. For total monthly price and additional fees, see .
In contract 12/23/2025
- ft²
3 rooms
1 bed
1 bath
Co-op
- Carnegie Hill
Under NYC law, you can't be charged a broker fee if you didn't hire a broker.
Listed By
This home has been saved by 132 users.
Listing by Compass, Corporate Broker, 110 5th Avenue, New York, NY 10011
Available
Available now
Days on market
33 days
Last price change
↓ $250 (-6.8%) on 12/17/25
About
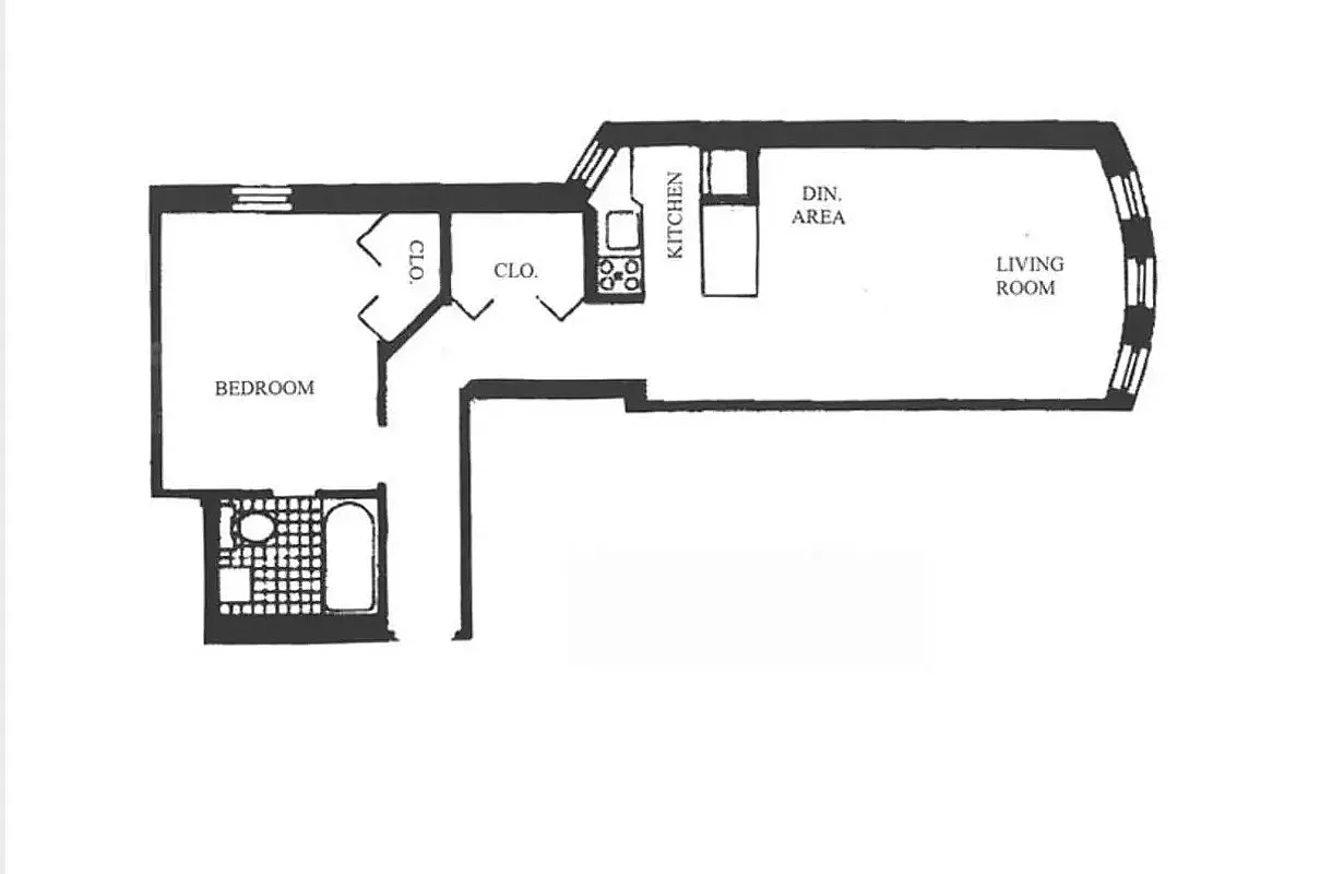
Bright Upper East Side One-Bedroom for Rent – Move-In Before January 1st!
NO FEE – Bright and spacious one-bedroom at 160 East 91st Street with a sun-filled living room featuring three front-facing windows and a quiet queen-size bedroom in the rear. Updated bath with a new vanity, 9-foot ceilings, fresh paint, and excellent storage including a huge double hall closet.
Policies
Co-purchase allowed
Gifts allowed
Guarantors accepted
Parents buying allowed
Pied-a-terre allowed
Sublets allowed
Home features
Dishwasher
Hardwood floors
View
City
Building amenities
Services and facilities
Bike room
Doorman
Part-time
Elevator
Laundry in building
Live-in super
Wellness and recreation
No info on wellness and recreation
Shared outdoor space
No info on shared outdoor space
About the building
160 East 91st Street
160 East 91st Street, New York, NY 10128
125 units
8 stories
1903 built
Property history
Prices shown are base rent only. For total monthly price and additional fees, see .
| Date | Base rent | Event |
|---|---|---|
12/23/2025 | $3,400 | In contract |
12/17/2025 | $3,400 | Price decreased by 7% |
12/8/2025 | $3,650 | Price decreased by 3% |
11/20/2025 | $3,750 | Listed by Compass |
Sign in to take a closer look at how this home compares to similar homes.
Explore Carnegie Hill
Transit
| Location | Distance |
|---|---|
456at 86th St | 0.22 miles |
Qat 96th St | 0.24 miles |
6at 96th St | 0.26 miles |
Qat 86th St | 0.31 miles |
6at 103rd St | 0.61 miles |
Similar homes
Prices shown are base rent only and don't include any fees. Visit each listing to see a complete cost breakdown.
Similar Homes looks at ad spend and other factors like location, price, and number of beds and baths.




























































































