$490,000
For Sale
- ft²
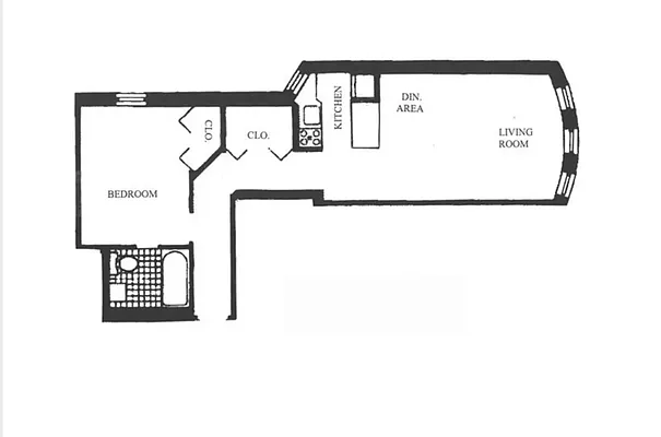
3 rooms
1 bed
1 bath
Co-op
- Carnegie Hill
Resale
This home has been saved by 46 users.
Listing by Compass, Corporate Broker, 110 5th Avenue, New York, NY 10011
Maintenance fees
$1,402/mo
Estimated payment
$4,226/mo
Legal disclaimerAll calculations are estimates provided by StreetEasy for informational purposes only. Actual amounts or financing terms may vary. Please contact your mortgage provider for specifics.Taxes
Included in maintenance fees
Tax abatement
No info
About
Seller’s agent
description
Bright Upper East Side One-Bedroom Co-op – Ideal for First-Time Buyers
Experience the best of Manhattan living in this sun-filled one-bedroom co-op at 160 East 91st Street on the Upper East Side. Perfect for first-time buyers, this beautifully maintained home combines prewar charm with modern updates and an unbeatable location near Central Park and major subway lines.
Policies
Co-purchase allowed
Gifts allowed
Guarantors accepted
Parents buying allowed
Pied-a-terre allowed
Sublets allowed
Home features
Hardwood floors
Building amenities
Services and facilities
Bike room
Doorman
Part-time
Elevator
Laundry in building
Live-in super
Wellness and recreation
No info on wellness and recreation
Shared outdoor space
No info on shared outdoor space
About the building
160 East 91st Street
160 East 91st Street, New York, NY 10128
125 units
8 stories
1903 built
For sale
8 available units for saleFor rent
1 available units for rentDocuments and permits
View documents and permitsProperty history
- Price Change: No changes
- Days on market: 48 daysThis is the number of days the listing has been on StreetEasy.
| Date | Price | Event |
|---|---|---|
10/17/2025 | $490,000 | Listed by Compass |
Sign in to take a closer look at how this home compares to similar homes.
Explore Carnegie Hill
Transit
| Location | Distance |
|---|---|
| 0.22 miles |
| 0.24 miles |
| 0.26 miles |
| 0.31 miles |
| 0.61 miles |


















































































































