$8,950,000
For Sale
No longer available 12/28/2013
- ft²
25 rooms
10 beds
7+ baths
Condo
- Fort Greene
Seller's agents
This home has been saved by 13 users.
Listing by Corcoran, Limited Liability Broker, 1 Pierrepont Plz, Brooklyn, NY 11201 | Brokerage Listing ID: 2580175
Common charges
No info
Estimated payment
$46,189/mo
Legal disclaimerAll calculations are estimates provided by StreetEasy for informational purposes only. Actual amounts or financing terms may vary. Please contact your mortgage provider for specifics.Taxes
$933/mo
Tax abatement
No info
About
Sellerâs agent
description
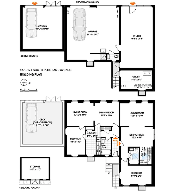
Here is a rare opportunity to own an historic compound in the heart of Ft Greene, comprised of two lots: 164 South Oxford St and 171 South Portland Ave. 164 South Oxford St spans the full 200 width of the block to South Portland Ave and is graced with two buildings in excellent condition. On the South Oxford side, a grand 5,500 sf 1860s brick Italianate townhouse sits atop a small hill overlooking the street.
Policies
Pets allowed
Home features
Fireplace
Private outdoor space
Patio
Building amenities
Services and facilities
Parking
Garage
Storage space
Wellness and recreation
No info on wellness and recreation
Shared outdoor space
No info on shared outdoor space
About the building
164 South Oxford Street
164 South Oxford Street, Brooklyn, NY 11217
7 units
4 stories
2015 built
For sale
0 available units for saleFor rent
0 available units for rentDocuments and permits
View documents and permitsProperty history
- Price Change: No changes
- Days on market: 116 daysThis is the number of days the listing has been on StreetEasy.
| Date | Price | Event |
|---|---|---|
12/28/2013 | $8,950,000 | No longer available |
8/20/2013 | $8,950,000 | In contract |
4/26/2013 | $8,950,000 | Listed by Corcoran |
Sign in to take a closer look at how this home compares to similar homes.
Explore Fort Greene
Transit
| Location | Distance |
|---|---|
Cat Lafayette Av | under 500 feet |
LIRRat Atlantic Terminal | 0.13 miles |
BDNQR2345at Atlantic AvâBarclays Ctr | 0.23 miles |
Gat Fulton St | 0.24 miles |
23at Bergen St | 0.26 miles |
About Fort Greene
Rental prices shown are base rent before any fees. Visit listings for cost and fees breakdown.
With bustling flea markets, a world-renowned performance space, trendy boutiques, fabulous restaurants, and a rich literary and artistic tradition, Fort Greene attracts residents looking for a slower pace of living without sacrificing the vibrancy of urban life. Historic brownstones and row houses make up most of the available real estate, and it's common to find neighbors catching up on their stoops. Intense Brooklyn pride is in evidence on the main drag of Fulton Street, where a Notorious B.I.G. quote is painted on the side of a prominent building - "Spread love it's the Brooklyn way."
Learn more about Fort Greene












































































































































































