- ft²
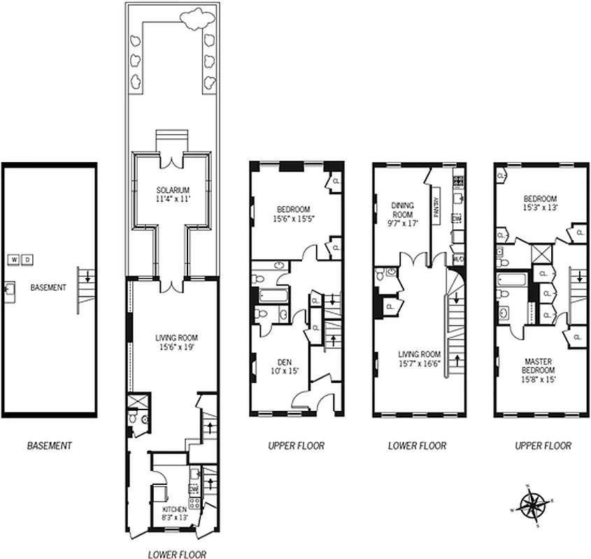
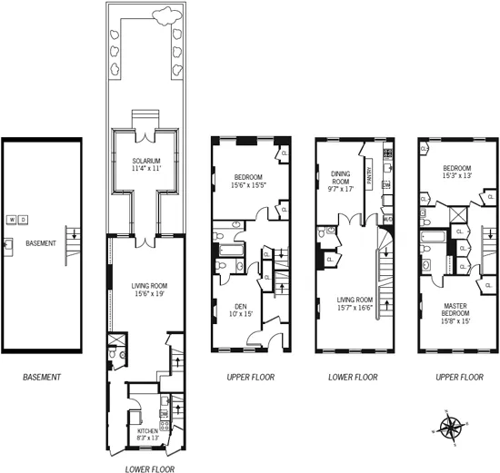
10 rooms
4 beds
5 baths
Two-family home
- Lenox Hill
recorded sale
Sold on 6/30/2015
Verified by closing records
Last listed for $8,000,000
Seller's agent
This home has been saved by 86 users.
Listing by Peter Ashe, Corporate Broker, 841 Lexington Avenue, New York, NY 10065-7416
Common charges
Not applicable
Estimated payment
$74,851/mo
Legal disclaimerAll calculations are estimates provided by StreetEasy for informational purposes only. Actual amounts or financing terms may vary. Please contact your mortgage provider for specifics.Taxes
$33,659/mo
Tax abatement
No info
About
Seller’s agent
Buyer’s agent
description
To learn more about this listing visit http://peterashe.com/index.cfm?page=details&id=53239#
Beautiful Brownstone, located on one of the most exceptional blocks on the Upper East Side, this spectacular home was prominently featured in the famous, 1961 film Breakfast at Tiffany's. With an elegant stoop, this Brownstone is to be converted into 4 bed room, 5 bath a single family home that boasts approximately which includes 4 floors, an enclosed greenhouse, and basement, with option to expand.
Policies
Sorry, policy info isn’t available right now. Check back later.
Home features
Dishwasher
Fireplace
Private outdoor space
Garden
Building amenities
No info on building amenities
About the building
169 East 71st Street
169 East 71st Street, New York, NY 10021
2 units
3 stories
1910 built
For sale
1 available units for saleFor rent
0 available units for rentDocuments and permits
View documents and permitsProperty history
- Price Change: ↓ $2,000,000 (-20.0%) on 8/25/14
- Days on market: 407 daysThis is the number of days the listing has been on StreetEasy.
| Date | Price | Event |
|---|---|---|
6/30/2015 | $7,400,000 | Sold by Peter Ashe |
6/18/2015 | $8,000,000 | In contract |
8/25/2014 | $8,000,000 | Price decreased by 20% |
5/7/2014 | $10,000,000 | Listed by Peter Ashe |
4/24/2012 | $5,850,000 |
Past listing photos
Sign in to take a closer look at how this home compares to similar homes.
Explore Lenox Hill
Transit
| Location | Distance |
|---|---|
6at 68th St–Hunter College | 0.16 miles |
Qat 72nd St | 0.18 miles |
6at 77th St | 0.29 miles |
FQat Lexington Av/63rd St | 0.41 miles |
NRW456at Lexington Av/59th St | 0.55 miles |


































































































































































