View this home virtually
3,500 ft²
$1,351 per ft²
10 rooms
4 beds
4.5 baths
House
- Lenox Hill
Resale
recorded sale
Sold on 8/19/2021
Verified by closing records
Last listed for $5,795,000
Seller's agents
This home has been saved by 142 users.
Listing by Brown Harris Stevens, Real Estate Principal Office, 129 Montague Street, Brooklyn, NY 11201
Common charges
Not applicable
Estimated payment
$34,903/mo
Legal disclaimerAll calculations are estimates provided by StreetEasy for informational purposes only. Actual amounts or financing terms may vary. Please contact your mortgage provider for specifics.Taxes
$4,963/mo
Tax abatement
No info
About
Seller’s agent
description
LOCATION LOCATION OPPORTUNITY
BRING YOUR ARCHITECT AND CONTRACTOR.
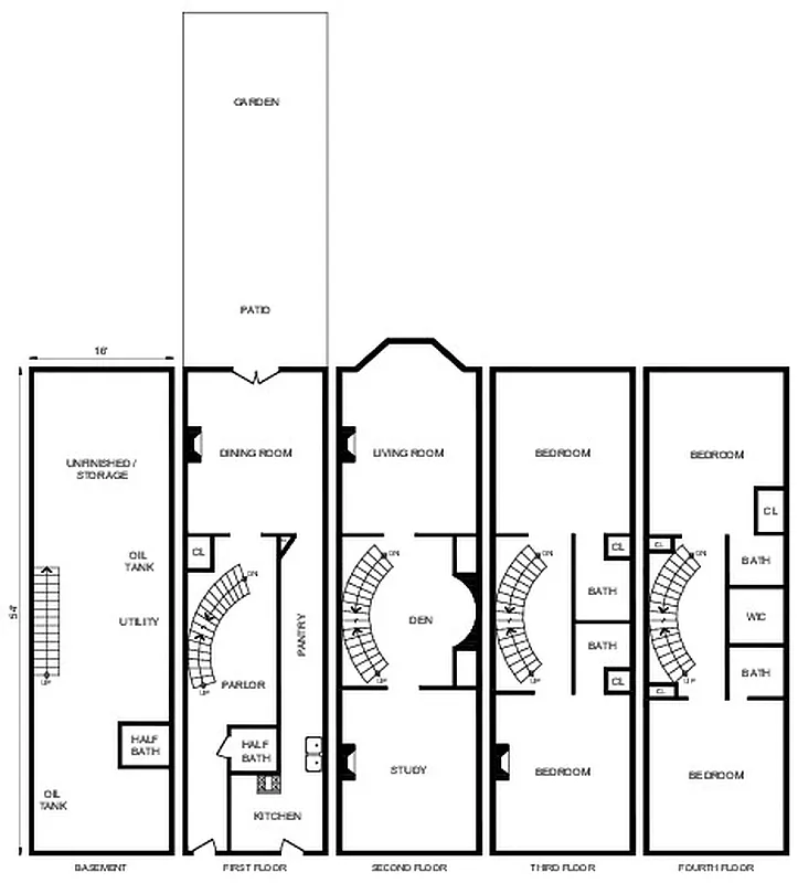
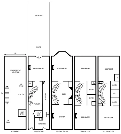
This 4 story plus basement late 1800's townhouse, which has been under the same ownership since 1981, is not landmarked, is not in an historic district and is in need of a total gut renovation.
The house is built 16x54 on a 16x100 lot. According to NYC records the allowable usable floor area is approximately 6400 square feet.
Policies
Sorry, policy info isn’t available right now. Check back later.
Home features
No info on home features
Building amenities
Services and facilities
No info on services and facilities
Wellness and recreation
No info on wellness and recreation
Shared outdoor space
Courtyard
About the building
173 East 64th Street
173 East 64th Street, New York, NY 10065
1 unit
4 stories
1899 built
For sale
0 available units for saleFor rent
0 available units for rentDocuments and permits
View documents and permitsProperty history
- Price Change: ↓ $600,000 (-9.4%) on 11/23/20
- Days on market: 378 daysThis is the number of days the listing has been on StreetEasy.
| Date | Price | Event |
|---|---|---|
6/1/2021 | $0 | |
6/1/2021 | $0 | |
8/19/2021 | $4,728,750 | Sold by Brown Harris Stevens |
7/7/2021 | $5,795,000 | In contract |
11/23/2020 | $5,795,000 | Price decreased by 9% |
Past listing photos
Sign in to take a closer look at how this home compares to similar homes.
Explore Lenox Hill
Transit
| Location | Distance |
|---|---|
FQat Lexington Av/63rd St | under 500 feet |
6at 68th St–Hunter College | 0.18 miles |
NRW456at Lexington Av/59th St | 0.21 miles |
Qat 72nd St | 0.3 miles |
NRat 59th St | 0.38 miles |











































































































































