View this home virtually
- ft²
5 rooms
2 beds
2 baths
Co-op
- Lenox Hill
Resale
reported sale
Sold on 7/6/2023
Not yet verified by closing records
Seller's agents
This home has been saved by 67 users.
Listing by Brown Harris Stevens, Real Estate Principal Office, 445 Park Avenue, New York, NY 10022
Maintenance fees
$1,926/mo
Estimated payment
$6,995/mo
Legal disclaimerAll calculations are estimates provided by StreetEasy for informational purposes only. Actual amounts or financing terms may vary. Please contact your mortgage provider for specifics.Taxes
Included in maintenance fees
Tax abatement
No info
About
Seller’s agent
description
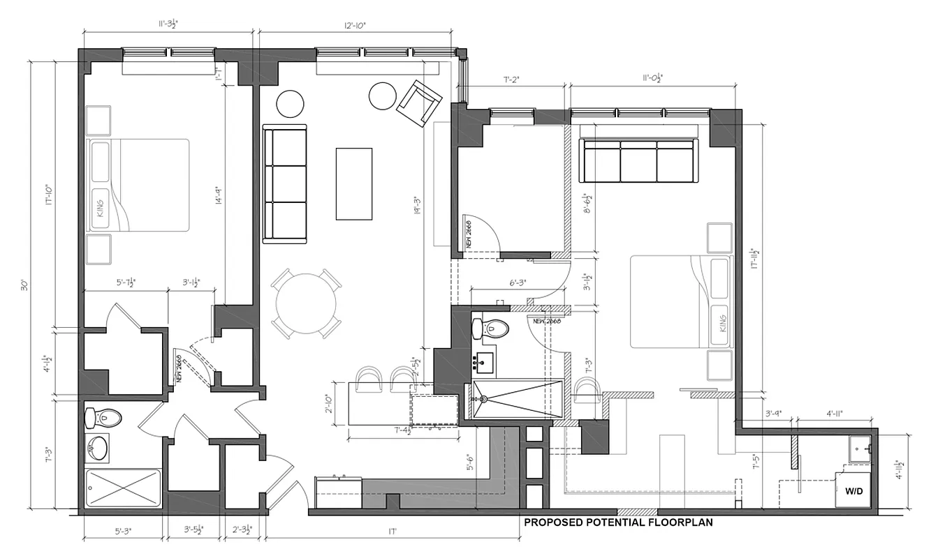
INVEST IN YOUR FUTURE!
HUGE 2 BED/2 BATH+
LOW MT, WEST OF THIRD
GARAGE, PETS OKAY!
This is the opportunity you’ve been waiting for! Have you always dreamed of putting your signature on a one of a kind home? Well look no further. We are confident that the bones are here and the finished “work of art home” will suit your needs and desires! Combine these floor plans and create a HUGE 2 bedroom/2 bathroom home with room to spare.
Policies
Pets allowed
Cats and dogs allowed
Home features
Central air
Dishwasher
Hardwood floors
View
City
Building amenities
Services and facilities
Bike room
Doorman
Full-time
Elevator
Laundry in building
Live-in super
Wellness and recreation
No info on wellness and recreation
Shared outdoor space
No info on shared outdoor space
About the building
176 East 77th Street
176 East 77th Street, New York, NY 10075
165 units
17 stories
1957 built
For sale
1 available units for saleFor rent
0 available units for rentDocuments and permits
View documents and permitsProperty history
- Price Change: No changes
- Days on market: 24 daysThis is the number of days the listing has been on StreetEasy.
| Date | Price | Event |
|---|---|---|
7/6/2023 | $1,142,000 | Sold by Brown Harris Stevens |
3/10/2023 | $1,142,000 | In contract |
2/14/2023 | $1,142,000 | Listed by Brown Harris Stevens |
Past listing photos
Sign in to take a closer look at how this home compares to similar homes.
Explore Lenox Hill
Transit
| Location | Distance |
|---|---|
6at 77th St | under 500 feet |
Qat 72nd St | 0.28 miles |
Qat 86th St | 0.38 miles |
6at 68th St–Hunter College | 0.44 miles |
456at 86th St | 0.47 miles |

































































































































