$3,797
For Rent
Base rent only. For total monthly price and additional fees, see .
Delisted 7/14/2025
- ft²
3 rooms
1 bed
1 bath
Hybrid
- South Harlem
Under NYC law, you can't be charged a broker fee if you didn't hire a broker.
Listed By
This home has been saved by 41 users.
Listing by Skyward, Limited Liability Broker, 136 Madison Avenue, New York, NY 10016
Unavailable
Delisted on 7/14/2025
Days on market
62 days
Last price change
No changes
About
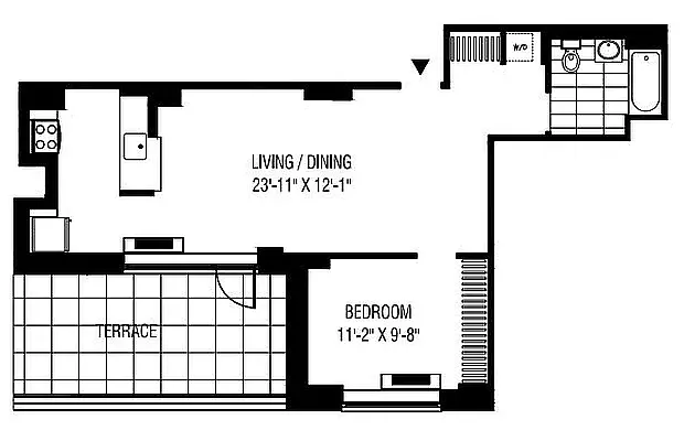
Huge 1 bedroom apartment on the 7th floor of 1770 Madison Ave. Very rare rent stabilized oversized unit with an enormous private outdoor space with tons of sunlight. Sample photos shown of similar finishes in building. Please see floorplan for exact layout. The apartment features floor to ceiling windows for an abundance of natural light. It also features beautifully italian tiled bathroom and spacious linear kitchen with lots of counter and cabinet space.
Policies
Sorry, policy info isnât available right now. Check back later.
Home features
Central air
Dishwasher
Private outdoor space
Balcony, Terrace
Washer/dryer
Building amenities
No info on building amenities
About the building
1770 Madison Avenue
1770 Madison Avenue, New York, NY 10035
32 units
8 stories
2014 built
Property history
Prices shown are base rent only. For total monthly price and additional fees, see .
| Date | Base rent | Event |
|---|---|---|
7/14/2025 | $3,797 | Delisted by Skyward |
5/13/2025 | $3,797 | Listed by Skyward |
5/2/2023 | $3,500 | |
4/10/2023 | $3,500 |
Sign in to take a closer look at how this home compares to similar homes.
Explore South Harlem
Transit
| Location | Distance |
|---|---|
6at 116th St | 0.2 miles |
23at 116th St | 0.26 miles |
6at 110th St | 0.37 miles |
23at 110th StâCentral Park North | 0.38 miles |
456at 125th St | 0.47 miles |
Similar homes
Prices shown are base rent only and don't include any fees. Visit each listing to see a complete cost breakdown.
Similar Homes looks at ad spend and other factors like location, price, and number of beds and baths.









































































































