2,418 ft²
$1,031 per ft²
2 rooms
Studio
1 bath
Hybrid
- Flatiron
reported sale
Sold on 4/29/2010
Not yet verified by closing records
Seller's agent
This home has been saved by 5 users.
Listing by Stribling, Corporate Broker, 962 Madison Avenue, New York, NY 10021 | MLS #: 213534
Common charges
$2,018/mo
Estimated payment
$19,780/mo
Taxes
$2,924/mo
Tax abatement
No info
About
Seller’s agent
description
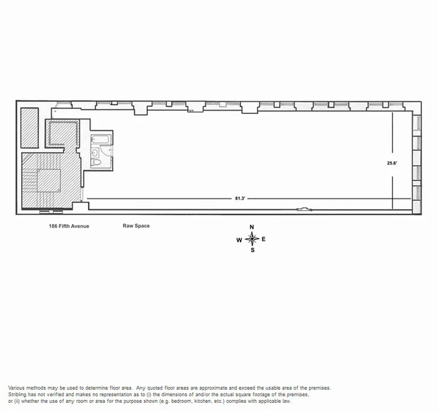
Located on Fifth Avenue and 23rd Street this full floor "As Is" Condo Loft, with residential zone is approximately 2418 square feet with 11ft ceilings. This corner loft has exceptional light and unobstructed views. 13 windows face north with views of Madison Square Park and the Fifth Avenue Toy Building and 4 windows face East with views of the Iconic Flatiron building and Metlife Clock.
Policies
Sorry, policy info isn’t available right now. Check back later.
Home features
Loft
Building amenities
No info on building amenities
About the building
186 Fifth Avenue Condominium
186 5th Avenue, New York, NY 10010
5 units
7 stories
1883 built
For sale
0 available units for saleFor rent
0 available units for rentDocuments and permits
View documents and permitsProperty history
- Price Change: No changes
- Days on market: 59 days
| Date | Price | Event |
|---|---|---|
3/9/2012 | $2,495,000 | Sold by Stribling |
12/13/2011 | $2,495,000 | Temporarily off market |
4/29/2010 | $2,495,000 | No longer available |
3/1/2010 | $2,495,000 | Listed by Stribling |
Past listing photos
Sign in to take a closer look at how this home compares to similar homes.
Explore Flatiron
Transit
| Location | Distance |
|---|---|
RWat 23rd St | under 500 feet |
FMat 23rd St | 0.15 miles |
PATHat 23rd Street Station | 0.17 miles |
6at 23rd St | 0.2 miles |
RWat 28th St | 0.26 miles |
About Flatiron
Rental prices shown are base rent before any fees. Visit listings for cost and fees breakdown.
SalesMedian asking price
Studio
$699K
RentalsMedian asking base rent
Studio
$4,500
Flatiron is a historic New York City neighborhood that has seen its fair share of change over the years. In the early 1900s, it was a major commercial and residential center. By the middle of the century, things stagnated as businesses and residents left in search of more space and lower rents. In recent years, stores, upscale restaurants, and new developments moved back in, and the neighborhood is seeing a significant resurgence. Fifth Avenue now bustles with some of the best shopping in the city, and restaurants run the gamut from Michelin-rated to Yelp-reviewed food trucks.
Flatiron is busiest at midday and cocktail hour and tends to quiet down a bit at night, although the lights never truly turn off. Proximity to Union Square and multiple subway lines make it an equally easy trip to Midtown or Downtown.

















































































































