- ft²
3 rooms
1 bed
1 bath
Co-op
- Bay Terrace
Resale
recorded sale
Sold on 9/21/2021
Verified by closing records
Last listed for $199,000
Seller's agent
This home has been saved by 12 users.
Listing by Station Cities, Limited Liability Broker, 135 Madison Avenue, New York, NY 10016
Maintenance fees
$1,082/mo
Estimated payment
$2,107/mo
Legal disclaimerAll calculations are estimates provided by StreetEasy for informational purposes only. Actual amounts or financing terms may vary. Please contact your mortgage provider for specifics.Taxes
Included in maintenance fees
Tax abatement
No info
About
Seller’s agent
Buyer’s agent
description
PRICED TO SELL!
VIDEO BY REQUEST! PLEASE CALL/TEXT/EMAIL LEAH FOR SHOWING/QUESTIONS.
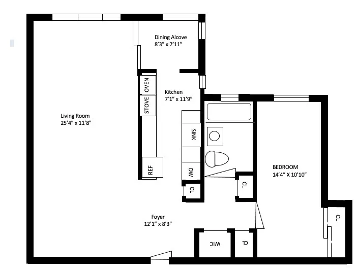
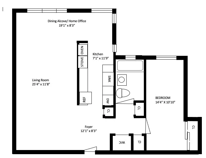
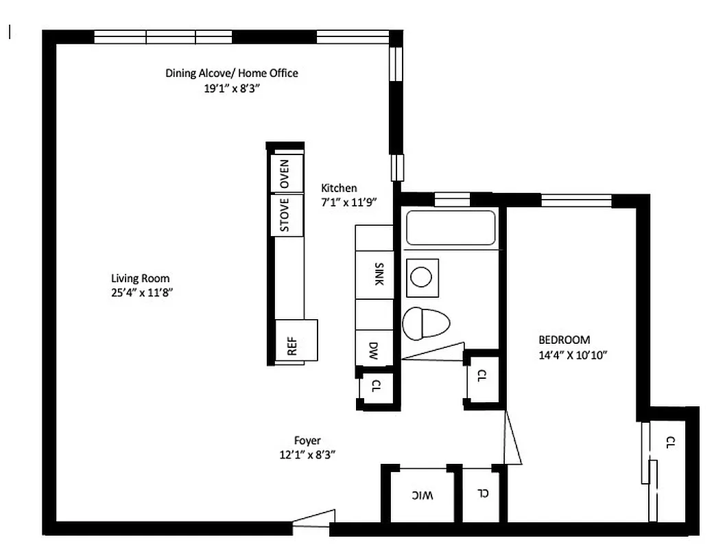
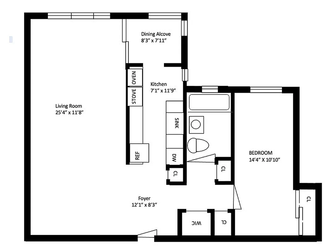
This is a very spacious bright 1 bedroom (Junior 4) , 1 bath coop apartment, ready for renovation. Photos are virtually upgrade to show potential.
Located in the heart of Bayside, it has an entry foyer, leading to a large living room with a dining alcove/office. All hardwood floors, and many closets.
Policies
Sorry, policy info isn’t available right now. Check back later.
Home features
Dishwasher
Hardwood floors
Building amenities
Services and facilities
Elevator
Laundry in building
Parking
Garage
Wellness and recreation
No info on wellness and recreation
Shared outdoor space
Courtyard
About the building
18-40 211th Street
18-40 211th Street, Bayside, NY 11360
240 units
6 stories
1961 built
For sale
1 available units for saleFor rent
0 available units for rentDocuments and permits
View documents and permitsProperty history
- Price Change: ↓ $16,000 (-7.4%) on 5/24/21
- Days on market: 76 daysThis is the number of days the listing has been on StreetEasy.
| Date | Price | Event |
|---|---|---|
9/21/2021 | $235,000 | Sold by Station Cities |
10/5/2021 | $199,000 | No longer available |
7/6/2021 | $199,000 | In contract |
5/24/2021 | $199,000 | Price decreased by 7% |
4/21/2021 | $215,000 | Listed by Station Cities |
Past listing photos
Sign in to take a closer look at how this home compares to similar homes.
Explore Bay Terrace
Transit
| Location | Distance |
|---|---|
LIRRat Bayside | 1.38 miles |
LIRRat Auburndale | 1.43 miles |
LIRRat Broadway | 1.69 miles |



















































































































