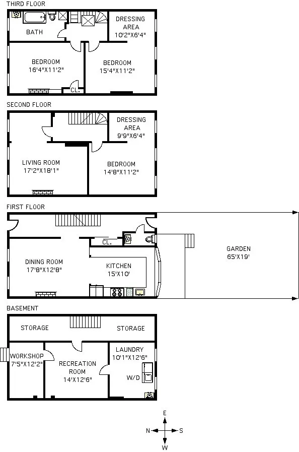
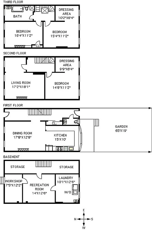
1,969 ft²
$985 per ft²
6 rooms
3 beds
1.5 baths
House
- Downtown Brooklyn
recorded sale
Sold on 10/21/2015
Verified by closing records
Last listed for $1,995,000
Seller's agent
This home has been saved by 46 users.
Listing by Corcoran, Limited Liability Broker, 1 Pierrepont Plz, Brooklyn, NY 11201 | Brokerage Listing ID: 3473293
Common charges
Not applicable
Estimated payment
$11,417/mo
Taxes
$394/mo
Tax abatement
No info
About
Seller’s agent
Buyer’s agent
description
DREAMERS WELCOMED! Directions for finding the Perfect Single Family Home: Close your eyes. ( well, OK pretend to close them) Make a wish for a storybook home. (You have to be in Brooklyn for the next one) Place it gently on a pretty and quiet Vinegar Hill block... Sort of like an oasis amidst the soldier like glass towers and predictable townhomes of Brooklyn.
Policies
Sorry, policy info isn’t available right now. Check back later.
Home features
Fireplace
Private outdoor space
Patio
Building amenities
No info on building amenities
About the building
190 Concord Street
190 Concord Street, Brooklyn, NY 11201
1 unit
3 stories
1915 built
For sale
0 available units for saleFor rent
0 available units for rentDocuments and permits
View documents and permitsProperty history
- Price Change: No changes
- Days on market: 34 days
| Date | Price | Event |
|---|---|---|
4/28/2022 | $2,505,000 | |
1/31/2022 | $2,395,000 | |
11/29/2021 | $2,395,000 | |
11/3/2021 | $2,295,000 | |
8/4/2021 | $2,295,000 |
Past listing photos
Sign in to take a closer look at how this home compares to similar homes.
Explore Downtown Brooklyn
Transit
| Location | Distance |
|---|---|
ACat High St | 0.28 miles |
Fat York St | 0.32 miles |
ACFRat Jay St–MetroTech | 0.33 miles |
BQRat DeKalb Av | 0.4 miles |
R2345at Borough Hall/Court St | 0.42 miles |
About Downtown Brooklyn
Rental prices shown are base rent before any fees. Visit listings for cost and fees breakdown.
SalesMedian asking price
3 beds
$2.58M
RentalsMedian asking base rent
3 beds
$8,369
Bisected by Flatbush Avenue and bordered by the BQE, Downtown Brooklyn is a rapidly expanding residential neighborhood. Easy subway access and abundant inventory have drawn many to the area looking for luxury rentals and condos in the area's numerous new apartment towers.
Historically, Downtown Brooklyn has been the hub of the borough's municipal activities with many civil service offices and court houses centered around Cadman Plaza, the neighborhood's main hub. With tons of city employees, lawyers and Brooklynites of all types constantly bustling about, Downtown Brooklyn has a decidedly hectic vibe. This, coupled with the area's lack of green space, makes Downtown Brooklyn most appealing to those who can embrace one of Brooklyn's busiest and most trafficked neighborhoods.











































































