View this home virtually
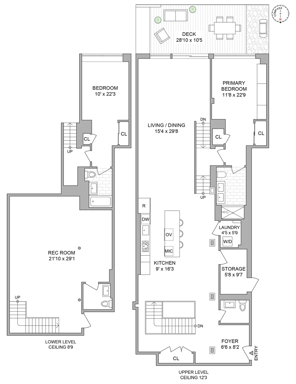
2,832 ft²
$950 per ft²
5 rooms
2 beds
2+ baths
Condo
- DUMBO
Resale
recorded sale
Sold on 8/11/2022
Verified by closing records
Last listed for $2,850,000
Seller's agent
This home has been saved by 50 users.
Listing by Compass, Corporate Broker, 212 Court Street, Brooklyn, NY 11201
Common charges
$1,594/mo
Estimated payment
$19,026/mo
Legal disclaimerAll calculations are estimates provided by StreetEasy for informational purposes only. Actual amounts or financing terms may vary. Please contact your mortgage provider for specifics.Taxes
$1,829/mo
Tax abatement
No info
About
Seller’s agent
Buyer’s agent
description
* Click the Video Tour link to see a full listing video for this beautiful home! *
This stunning and spacious Dumbo loft with private terrace offers 2832 SF of sophisticated design over two floors, with 2 bedrooms, 2 bathrooms, and 2 half bathrooms.
The expansive main floor features exposed timber beams and posts, exposed brick walls, 12-foot ceilings, and polished concrete floors and encompasses a large, open kitchen, and oversized dining and living areas.
Policies
Sorry, policy info isn’t available right now. Check back later.
Home features
Central air
Dishwasher
Private outdoor space
Terrace
Washer/dryer
Building amenities
Services and facilities
Bike room
Doorman
Virtual
Elevator
Laundry in building
Package room
Storage space
Locker/cage
Wellness and recreation
Gym
Shared outdoor space
No info on shared outdoor space
About the building
192 Water Street
192 Water Street, Brooklyn, NY 11201
9 units
5 stories
1900 built
For sale
0 available units for saleFor rent
0 available units for rentDocuments and permits
View documents and permitsProperty history
- Price Change: No changes
- Days on market: 53 daysThis is the number of days the listing has been on StreetEasy.
| Date | Price | Event |
|---|---|---|
8/11/2022 | $2,693,000 | Sold by Compass |
6/10/2022 | $2,850,000 | In contract |
4/18/2022 | $2,850,000 | Listed by Compass |
1/18/2022 | $2,649,500 | |
1/17/2022 | $2,649,500 |
Past listing photos
Sign in to take a closer look at how this home compares to similar homes.
Explore DUMBO
Transit
| Location | Distance |
|---|---|
Fat York St | 0.11 miles |
ACat High St | 0.28 miles |
Ferryat Fulton Ferry Landing | 0.46 miles |
23at Clark St | 0.52 miles |
ACFRat Jay St–MetroTech | 0.65 miles |
About DUMBO
Rental prices shown are base rent before any fees. Visit listings for cost and fees breakdown.
SalesMedian asking price
2 beds
$2.23M
RentalsMedian asking base rent
2 beds
$7,570
Dumbo can no longer be labeled "up-and-coming" — it is up and it has come. Narrow cobblestone streets and warehouse spaces offer a raw, industrial appeal. And while designer boutiques and trendy restaurants and bars are everywhere, don't expect a raucous late-night scene. Dumbo caters to those who seek a Tribeca vibe, but want a little distance from the hustle of Downtown Manhattan. It's no surprise that it's now known as a place where established local artists, musicians, and creative types can rub elbows with A-list celebrities.
Learn more about DUMBO





























































































































































































































