3,800 ft²
$1,513 per ft²
6 rooms
4 beds
3.5 baths
Condo
- Tribeca
Resale
reported sale
Sold on 7/7/2015
Not yet verified by closing records
Seller's agents
Andrew Melnick
Licensed Associate Real Estate Broker
Tabak Real Estate
Heidi Schaffer
Licensed Associate Real Estate Broker
Tabak Real Estate
This home has been saved by 55 users.
Listing by Tabak Real Estate, Limited Liability Broker, 137 Reade Street, New York, NY 10013
Common charges
$2,946/mo
Estimated payment
$35,808/mo
Taxes
$2,465/mo
Tax abatement
No info
About
Seller’s agent
description
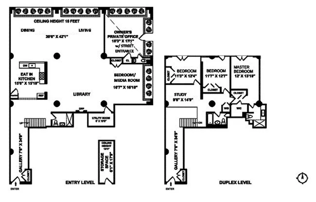
3,800 sf corner Maisonette located in a full service doorman condo in Northern Tribeca. This home has been renovated to maintain its industrial roots and highlight Tribeca’s authenticity. Currently configured as a 3 bedroom 3 bath duplex plus a private office with an additional half bath. This loft can be easily converted to a 4 or 5 bedroom residence and provides an option to enter through the existing private street entrance.
Policies
Pets allowed
Cats and dogs allowed
Home features
Central air
Dishwasher
Fireplace
Loft
Washer/dryer
Building amenities
Services and facilities
Bike room
Concierge
Doorman
Full-time
Elevator
Live-in super
Package room
Parking
Garage
Storage space
Wellness and recreation
No info on wellness and recreation
Shared outdoor space
Roof deck
About the building
195 Hudson Street
195 Hudson Street, New York, NY 10013
27 units
7 stories
1929 built
For sale
0 available units for saleFor rent
0 available units for rentDocuments and permits
View documents and permitsProperty history
- Price Change: ↓ $245,000 (-4.1%) on 5/10/15
- Days on market: 131 days
| Date | Price | Event |
|---|---|---|
7/7/2015 | $5,750,000 | |
5/10/2015 | $5,750,000 | Price decreased by 4% |
5/10/2015 | $5,995,000 | Price increased by 4% |
5/10/2015 | $5,750,000 | Price decreased by 4% |
4/16/2015 | $5,995,000 | Price decreased by 7% |
Past listing photos
Sign in to take a closer look at how this home compares to similar homes.
Explore Tribeca
Transit
| Location | Distance |
|---|---|
1at Canal St | under 500 feet |
ACEat Canal St | 0.18 miles |
CEat Spring St | 0.27 miles |
1at Franklin St | 0.28 miles |
1at Houston St | 0.36 miles |
About Tribeca
Rental prices shown are base rent before any fees. Visit listings for cost and fees breakdown.
SalesMedian asking price
4 beds
$7.25M
RentalsMedian asking base rent
4 beds
$12,000
Tribeca is an upscale neighborhood known for high-end real estate and well-heeled residents — a downtown haven for European cars and pedigreed dogs. It's also a truly gorgeous area that mixes glorious old cast-iron lofts, wide cobblestone streets, and dramatic new buildings. Decades ago, these lofts housed artists and squatters. But the bohemians have given way to cool-seekers with bigger bank accounts. Now, this neighborhood is among the most expensive places to live in the city. That hasn't cost the neighborhood much of its sophistication, though. Nightlife in Tribeca remains busy but refined, attracting a cosmopolitan crowd with an appreciation for the finer things in life.
Learn more about Tribeca




















































































































