- ft²
2 rooms
Studio
0 baths
House
- Cobble Hill
reported sale
Sold on 3/24/2011
Not yet verified by closing records
Seller's agent
This home has been saved by 9 users.
Listing by Brown Harris Stevens, Real Estate Principal Office, 129 Montague Street, Brooklyn, NY 11201 | MLS #: 73133
Common charges
Not applicable
Estimated payment
$18,495/mo
Legal disclaimerAll calculations are estimates provided by StreetEasy for informational purposes only. Actual amounts or financing terms may vary. Please contact your mortgage provider for specifics.Taxes
$1,372/mo
Tax abatement
No info
About
Seller’s agent
description
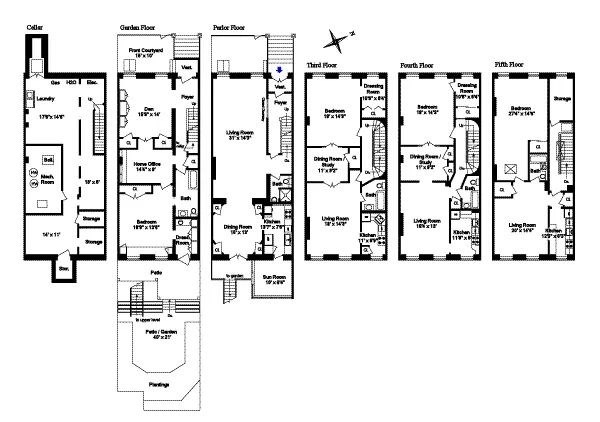
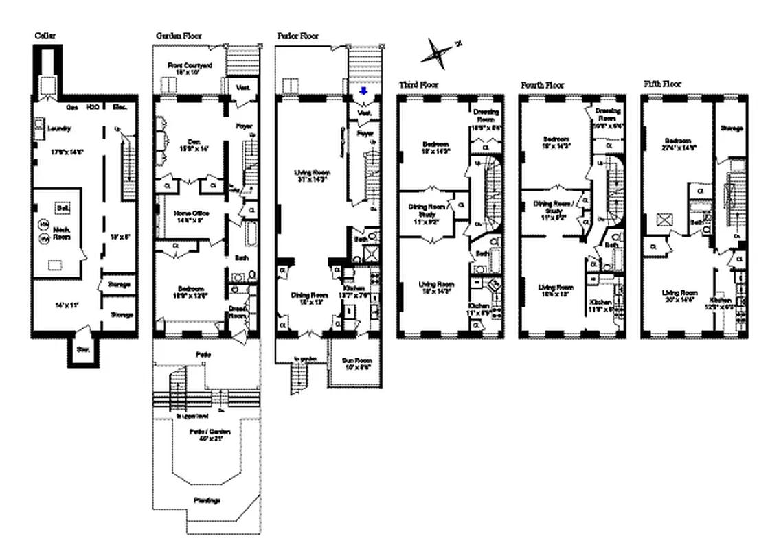
This townhouse has been pampered. Meticulously maintained five story home. Beautifully maintained from the roof to the restored fa ade, to the immaculate cellar. Owner's lavish duplex plus three free market, beautiful rental apartments. Owners beautiful pristineduplex offers an elegant parlor floor with high ceilings, restored crown moldings and beautiful hardwood floors.
Policies
Sorry, policy info isn’t available right now. Check back later.
Home features
Private outdoor space
Garden
Building amenities
Services and facilities
No info on services and facilities
Wellness and recreation
No info on wellness and recreation
Shared outdoor space
Roof deck
About the building
197 Clinton Street
197 Clinton Street, Brooklyn, NY 11201
1 unit
6 stories
1857 built
For sale
0 available units for saleFor rent
0 available units for rentDocuments and permits
View documents and permitsProperty history
- Price Change: No changes
- Days on market: 220 daysThis is the number of days the listing has been on StreetEasy.
| Date | Price | Event |
|---|---|---|
5/5/2021 | $5,400,000 | |
2/9/2021 | $5,500,000 | |
12/14/2020 | $5,500,000 | Price decreased by 7% |
10/2/2020 | $5,900,000 | |
3/7/2013 | $0 |
Past listing photos
Sign in to take a closer look at how this home compares to similar homes.
Explore Cobble Hill
Transit
| Location | Distance |
|---|---|
R2345at Borough Hall/Court St | 0.26 miles |
FGat Bergen St | 0.28 miles |
ACFRat Jay St–MetroTech | 0.4 miles |
ACGat Hoyt & Schermerhorn | 0.44 miles |
23at Hoyt St | 0.47 miles |
About Cobble Hill
Rental prices shown are base rent before any fees. Visit listings for cost and fees breakdown.
SalesMedian asking price
Studio
$719K
RentalsMedian asking base rent
Studio
$2,950
Cobble Hill is a beautiful, historic neighborhood with some of the borough's most expensive real estate. Despite the abundance of seven-figure homes, Cobble Hill has small-town vibe evident in the mom-and-pop stores and Italian influences that dot Court Street. Walk down the sunny commercial strip and you'll pass the local butcher, the baker and the fishmonger — all family-run and equally popular among local residents and foodies from far and wide.
On the side streets, the homes tend to be large brick townhouses and brownstones owned by single families, with well-kept facades and window boxes. This is a neighborhood where homeownership is a luxury, and residents take that responsibility to heart. The blocks are clean, the community associations active, and the lifestyle warm and genteel.































































































































































