3,750 ft²
$1,026 per ft²
3 rooms
1 bed
1 bath
Commercial building
- Williamsburg
recorded sale
Sold on 3/20/2015
Verified by closing records
Last listed for $3,650,000
Seller's agents
Dennis McCarthy
Licensed Associate Real Estate Broker
Corcoran
This home has been saved by 13 users.
Listing by Corcoran, Limited Liability Broker, 245 Bedford Avenue, Brooklyn, NY 11211 | Brokerage Listing ID: 3394359
Common charges
Not applicable
Estimated payment
$19,105/mo
Taxes
$768/mo
Tax abatement
No info
About
Seller’s agent
Buyer’s agent
description
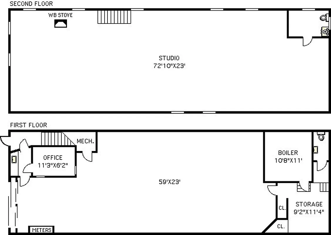
Incredibly Unique Opportunity One of the very few remaining artist lofts in the heart of Williamsburg. A rare find, rich in character this solid brick construction building is built 25 x 75 on a 75 lot and offers 2 full floors. Each floor is approx. 1,875 sqft totaling approx. 3,750 sqft and additional FAR allows for more space to be added.
Policies
Sorry, policy info isn’t available right now. Check back later.
Home features
Loft
Building amenities
No info on building amenities
About the building
198 North 4th Street
198 North 4th Street, Brooklyn, NY 11211
- units
2 stories
1950 built
For sale
0 available units for saleFor rent
0 available units for rentDocuments and permits
View documents and permitsProperty history
- Price Change: No changes
- Days on market: 52 days
| Date | Price | Event |
|---|---|---|
3/20/2015 | $3,850,000 | Sold by Corcoran |
3/20/2015 | $3,650,000 | No longer available |
3/13/2015 | $3,650,000 | In contract |
1/20/2015 | $3,650,000 | Listed by Corcoran |
Past listing photos
Sign in to take a closer look at how this home compares to similar homes.
Explore Williamsburg
Transit
| Location | Distance |
|---|---|
Lat Bedford Av | 0.16 miles |
GLat Metropolitan Av | 0.33 miles |
JMZat Marcy Av | 0.43 miles |
GLat Lorimer St | 0.46 miles |
Ferryat North 5th Street Ferry landing | 0.46 miles |
About Williamsburg
Rental prices shown are base rent before any fees. Visit listings for cost and fees breakdown.
SalesMedian asking price
1 bed
$1.11M
RentalsMedian asking base rent
1 bed
$4,600
Williamsburg is Brooklyn's booming epicenter with a well-deserved and worldwide reputation for being an influential hub thanks to a thriving cultural scene. Here you will find eye-catching new construction, brownstones, and prewars sitting next to historic buildings on streets dotted with restaurants, art spaces, boutiques, and more. With a Manhattan-facing waterfront (hello Domino Park!) and its large weekend markets (we're talking about you, Smorgasburg, and Artists & Fleas), the neighborhood is ideal for strolling and people watching. Another fringe benefit is Williamsburg's proximity to Manhattan via the G, L, M, and N subway lines.
Learn more about Williamsburg




























































































































































