- ft²
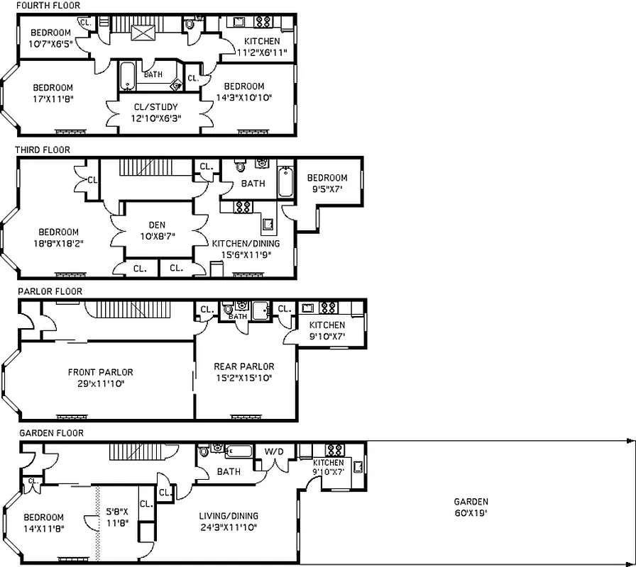
15 rooms
5 beds
4 baths
Two-family home
- Flatbush
recorded sale
Sold on 9/23/2014
Verified by closing records
Last listed for $1,395,000
Seller's agent
This home has been saved by 8 users.
Listing by Brown Harris Stevens, Real Estate Principal Office, 100 Seventh Avenue, Brooklyn, NY 11215 | MLS #: 9913656
Common charges
Not applicable
Estimated payment
$7,054/mo
Legal disclaimerAll calculations are estimates provided by StreetEasy for informational purposes only. Actual amounts or financing terms may vary. Please contact your mortgage provider for specifics.Taxes
No info
Tax abatement
No info
About
Seller’s agent
description
CONTRACT SIGNED
4 Story, 2 Family Building
Presenting a beautiful turn of the century barrel front limestone and brick 2 family, 4 story building, built on a 19.25' x 114.75' lot. This solid building retains its fine hand-crafted original detail: carved wood bannister with decorative newel post, tiled mantles, hardwood floors, built-in cabinetry, pocket doors, and window surrounds, all unpainted and in excellent condition.
Policies
Sorry, policy info isn’t available right now. Check back later.
Home features
Private outdoor space
Garden
Building amenities
No info on building amenities
About the building
20 Clarkson Avenue
20 Clarkson Avenue, Brooklyn, NY 11226
2 units
3 stories
1905 built
For sale
0 available units for saleFor rent
0 available units for rentDocuments and permits
View documents and permitsProperty history
- Price Change: No changes
- Days on market: 59 daysThis is the number of days the listing has been on StreetEasy.
| Date | Price | Event |
|---|---|---|
9/23/2014 | $1,500,000 | Sold by Brown Harris Stevens |
9/24/2014 | $1,395,000 | No longer available |
6/28/2014 | $1,395,000 | In contract |
4/30/2014 | $1,395,000 | Listed by Brown Harris Stevens |
Past listing photos
Sign in to take a closer look at how this home compares to similar homes.
Explore Flatbush
Transit
| Location | Distance |
|---|---|
BQat Parkside Av | 0.14 miles |
BQat Church Av | 0.3 miles |
BQSat Prospect Park | 0.46 miles |
25at Winthrop St | 0.46 miles |
25at Church Av | 0.54 miles |






































































































