$3,400
For Rent
Base rent only. For total monthly price and additional fees, see .
No longer available 12/17/2019
- ft²
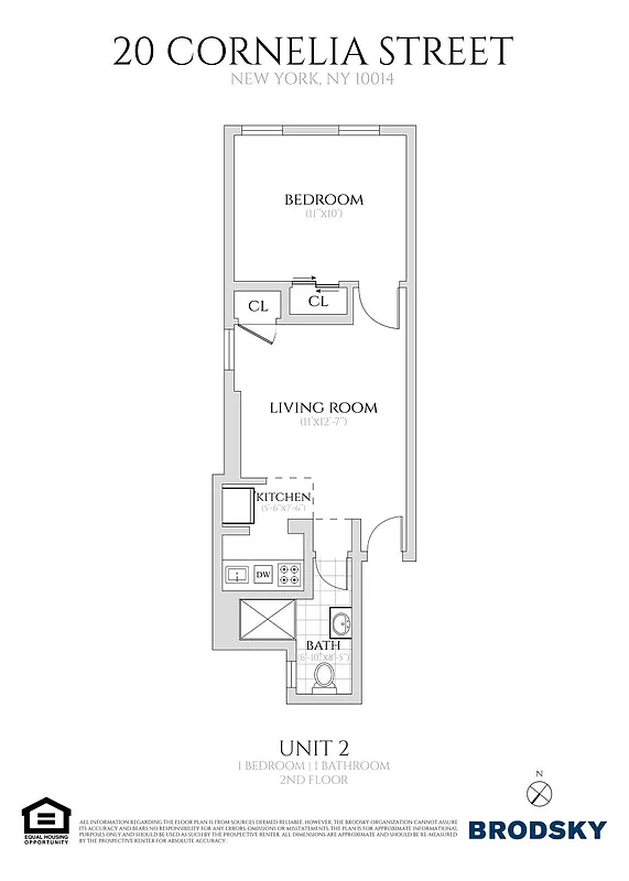
3 rooms
1 bed
1 bath
Rental unit
- West Village
Under NYC law, you can't be charged a broker fee if you didn't hire a broker.
Listed By
Felicia Canales
Brodsky
Brodsky
This home has been saved by 368 users.
Listing by Brodsky | Brokerage Listing ID: 75850000
Unavailable
No longer available on 12/17/2019
Days on market
0 days
Last price change
↓ $95 (-2.7%) on 12/15/19
About
Apartment Description:
Brand new, gut renovated one bedroom apartment on Historic street. Apartment features hardwood floors, separate kitchen with full size stainless steel of appliances and dishwasher, two large closets, and king size bedroom.
Building Description:
20 Cornelia is located on a unique tucked-away street, just one block long and dotted with famous restaurants.
Policies
Pets allowed
Home features
Dishwasher
Building amenities
Services and facilities
Live-in super
Wellness and recreation
No info on wellness and recreation
Shared outdoor space
No info on shared outdoor space
About the building
20 Cornelia Street
20 Cornelia Street, New York, NY 10014
31 units
5 stories
1900 built
Property history
Prices shown are base rent only. For total monthly price and additional fees, see .
| Date | Base rent | Event |
|---|---|---|
3/3/2025 | $4,495 | |
3/1/2025 | $4,495 | |
8/9/2023 | $4,495 | |
8/5/2023 | $4,495 | |
12/17/2019 | $3,400 | No longer available |
Sign in to take a closer look at how this home compares to similar homes.
Explore West Village
Transit
| Location | Distance |
|---|---|
ABCDEFMat West 4th St | under 500 feet |
1at Christopher St–Sheridan Sq | 0.15 miles |
1at Houston St | 0.24 miles |
PATHat 9th Street Station | 0.26 miles |
PATHat Christopher Street Station | 0.29 miles |
About West Village
Rental prices shown are base rent before any fees. Visit listings for cost and fees breakdown.
SalesMedian asking price
1 bed
$1.15M
RentalsMedian asking base rent
1 bed
$5,297
Picture a romantic comedy set in New York City: The heroine invariably lives in a cozy walk-up on a cobblestone street in a neighborhood with cute boutiques and trendy cafes on every corner. This movie is set in the West Village. In reality, the West Village is just as picturesque: The neighborhood is tucked between Greenwich Village and the Hudson River and is one of the quietest and most sophisticated pockets of Downtown Manhattan. Primarily residential, with a distinct lack of office buildings, the leafy, off-the-grid streets are peaceful during the day but get livelier at night. That's when well-heeled residents, fashionistas, and literati can all be found mingling over oysters at the area's many low-lit cocktail bars.
Learn more about West VillageSimilar homes
Prices shown are base rent only and don't include any fees. Visit each listing to see a complete cost breakdown.
Similar Homes looks at ad spend and other factors like location, price, and number of beds and baths.










































































































