- ft²
3 rooms
1 bed
1 bath
Co-op
- Murray Hill
Resale
recorded sale
Sold on 9/4/2025
Verified by closing records
Last listed for $599,000
Seller's agent
This home has been saved by 59 users.
Listing by Level Group, Corporate Broker, 5 West 37th Street, New York, NY 10018
Maintenance fees
$1,965/mo
Estimated payment
$4,856/mo
Legal disclaimerAll calculations are estimates provided by StreetEasy for informational purposes only. Actual amounts or financing terms may vary. Please contact your mortgage provider for specifics.Taxes
Included in maintenance fees
Tax abatement
No info
About
Seller’s agent
description
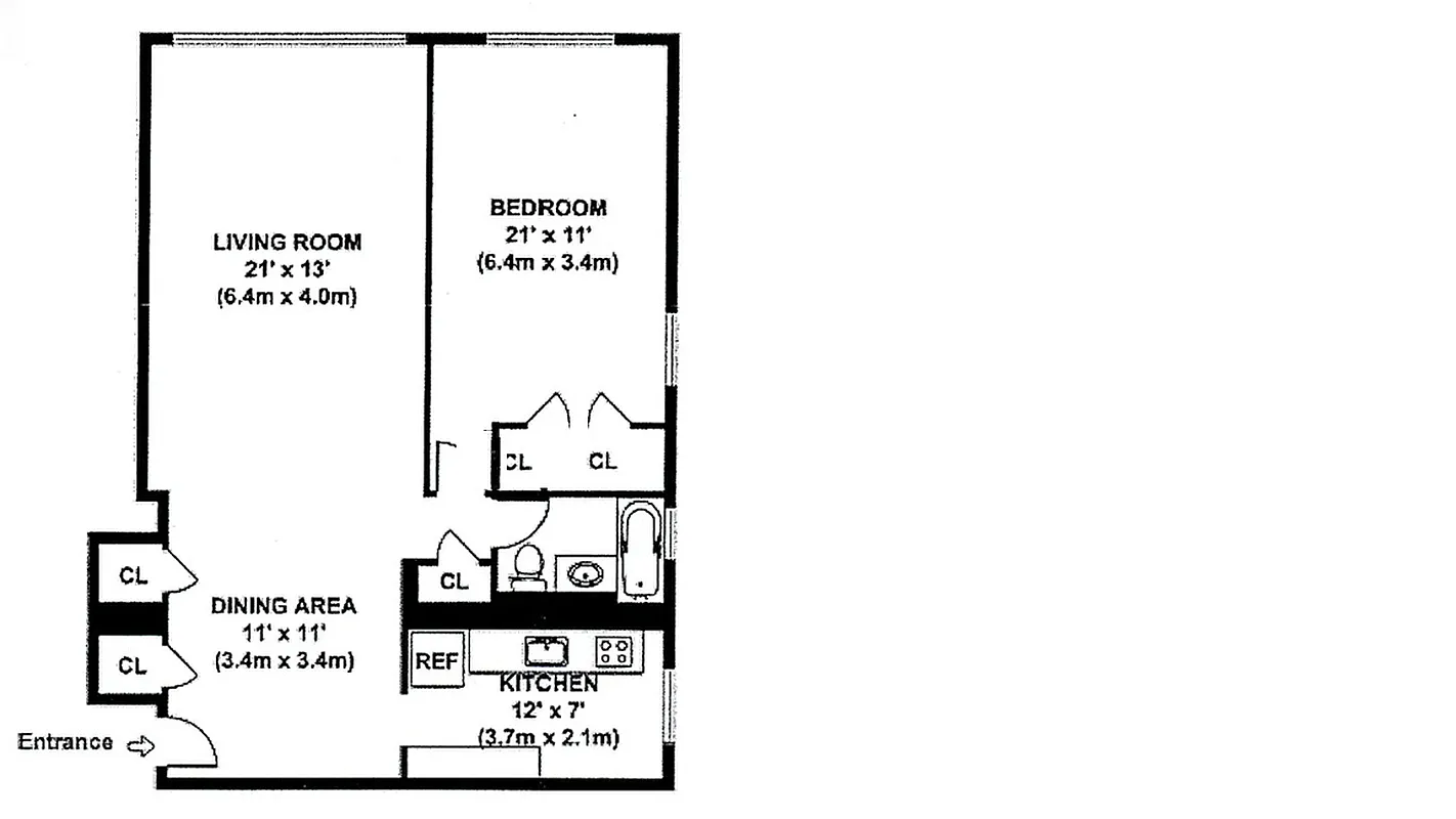
HIGH FLOOR CORNER 1 BED CO-OP
WINDOWED KITCHEN & BATH / NORTH & EAST EXPOSURES
Welcome to your new home at 200 East 36th Street Apt 13G in this stunning co-op building in Murray Hill! Step into this oversized corner 1 bedroom / 1 bathroom. The unit features a windowed kitchen with granite counters and stainless steel appliances, windowed bathroom, a wall of picture windows, 4 huge closets, hardwood...
Policies
Co-purchase allowed
Gifts allowed
Guarantors accepted
Parents buying allowed
Pets allowed
Cats and dogs allowed
Pied-a-terre allowed
Home features
Dishwasher
Hardwood floors
View
City
Building amenities
Services and facilities
Bike room
Doorman
Full-time
Elevator
Laundry in building
Live-in super
Wellness and recreation
Gym
Shared outdoor space
Courtyard
About the building
200 East 36th Street
200 East 36th Street, New York, NY 10016
148 units
19 stories
1955 built
For sale
4 available units for saleFor rent
0 available units for rentDocuments and permits
View documents and permitsProperty history
- Price Change: No changes
- Days on market: 45 daysThis is the number of days the listing has been on StreetEasy.
| Date | Price | Event |
|---|---|---|
9/4/2025 | $595,000 | Sold by Level Group |
4/25/2025 | $599,000 | In contract |
3/11/2025 | $599,000 | Listed by Level Group |
2/26/2013 | $615,000 | |
3/1/2013 | $635,000 |
Past listing photos
Sign in to take a closer look at how this home compares to similar homes.
Explore Murray Hill
Transit
| Location | Distance |
|---|---|
6at 33rd St | 0.24 miles |
S4567at Grand Central–42nd St | 0.3 miles |
Ferryat E 34th Street Ferry Landing | 0.34 miles |
6at 28th St | 0.43 miles |
BDFM7at 5th Av | 0.51 miles |
About Murray Hill
Rental prices shown are base rent before any fees. Visit listings for cost and fees breakdown.
SalesMedian asking price
1 bed
$745K
RentalsMedian asking base rent
1 bed
$4,600
Murray Hill has a lively energy most hours of the day and night. In the morning, the streets are filled with professionals looking polished in their Brooks Brothers suits as they head to work. Come evening, you'll see the crowds returning home decked out in gym clothes and schlepping bags of take-out dinner and Trader Joe's. The neighborhood has a down-to-earth, casual vibe, and there's always a big game airing at one of the many sports bars along the Third Avenue strip. Many of Murray Hill's residents are renters who come and go, but the place eschews intransigence and maintains a familiar, college-town feel.
Learn more about Murray Hill






















































































































































