View this home virtually
$9,500
For Rent
Base rent only. For total monthly price and additional fees, see .
Rented 7/20/2020
- ft²
8 rooms
4 beds
3 baths
Rental unit
- Little Italy
Under NYC law, you can't be charged a broker fee if you didn't hire a broker.
Listed By
This home has been saved by 34 users.
Listing by Oxford Property Group, Limited Liability Broker, 5 West 37th Street, New York, NY 10018
Unavailable
Rented on 7/20/2020
Days on market
11 days
Last price change
No changes
About
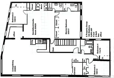
Huge 4 bedroom 3 bathroom full-floor apartment at the intersection of Soho/Little Italy/Chinatown surrounded by restaurants, shops, and nightlife.
The apartment is located on the 4th floor where the elevator opens into the spacious living and dining area with exposed brick. It features classic tin ceilings, stainless steel appliances in the kitchen, a laundry room with a washer and dryer, and several closets throughout.
Policies
Sorry, policy info isn’t available right now. Check back later.
Home features
No info on home features
Building amenities
No info on building amenities
About the building
203 Canal Street
203 Canal Street, New York, NY 10013
6 units
5 stories
1915 built
For rent
0 available units for rentProperty history
Prices shown are base rent only. For total monthly price and additional fees, see .
| Date | Base rent | Event |
|---|---|---|
7/20/2020 | $9,500 | Rented by Oxford Property Group |
7/9/2020 | $9,500 | Listed by Oxford Property Group |
2/11/2019 | $11,500 | |
12/15/2018 | $11,500 | Price decreased by 8% |
12/4/2018 | $12,500 |
Past listing photos
Sign in to take a closer look at how this home compares to similar homes.
Explore Little Italy
Transit
| Location | Distance |
|---|---|
JNQRWZ6at Canal St | under 500 feet |
BDat Grand St | 0.26 miles |
JZat Bowery | 0.32 miles |
JZ456at Chambers St | 0.32 miles |
6at Spring St | 0.34 miles |
Similar homes
Prices shown are base rent only and don't include any fees. Visit each listing to see a complete cost breakdown.
Similar Homes looks at ad spend and other factors like location, price, and number of beds and baths.




































































































