$8,000,000
For Sale
No longer available 4/22/2021
- ft²
7 rooms
4 beds
5.5 baths
House
- Chelsea
Resale
Seller's agents
This home has been saved by 118 users.
Listing by Compass, Corporate Broker, 110 5th Avenue, New York, NY 10011
Common charges
Not applicable
Estimated payment
$48,119/mo
Legal disclaimerAll calculations are estimates provided by StreetEasy for informational purposes only. Actual amounts or financing terms may vary. Please contact your mortgage provider for specifics.Taxes
$4,166/mo
Tax abatement
No info
About
Seller’s agent
description
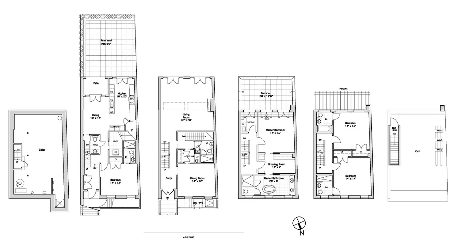
Conveniently located on a tree-lined Central Chelsea block, 204 W 21st Street is a meticulous, recently gut-renovated 22 1/2-foot wide, sun-filled 4-story single-family townhouse comprising gracious interior living spaces (with an additional 750sf of storage space in the basement) and over 690 square feet of exterior living space including a magnificent south-facing garden and a terrace.
Policies
Sorry, policy info isn’t available right now. Check back later.
Home features
No info on home features
Building amenities
Services and facilities
No info on services and facilities
Wellness and recreation
No info on wellness and recreation
Shared outdoor space
Courtyard
Roof deck
About the building
204 West 21st Street
204 West 21st Street, New York, NY 10011
1 unit
3 stories
1910 built
For sale
0 available units for saleFor rent
0 available units for rentDocuments and permits
View documents and permitsProperty history
- Price Change: ↓ $500,000 (-5.9%) on 2/21/21
- Days on market: 224 daysThis is the number of days the listing has been on StreetEasy.
| Date | Price | Event |
|---|---|---|
7/22/2021 | $8,000,000 | No longer available |
4/22/2021 | $8,000,000 | Temporarily off market |
2/21/2021 | $8,000,000 | Price decreased by 6% |
11/30/2020 | $8,500,000 | Price decreased by 3% |
9/10/2020 | $8,750,000 | Listed by Compass |
Sign in to take a closer look at how this home compares to similar homes.
Explore Chelsea
Transit
| Location | Distance |
|---|---|
1at 23rd St | 0.1 miles |
1at 18th St | 0.12 miles |
CEat 23rd St | 0.17 miles |
FMat 23rd St | 0.21 miles |
PATHat 23rd Street Station | 0.23 miles |
About Chelsea
Rental prices shown are base rent before any fees. Visit listings for cost and fees breakdown.
SalesMedian asking price
4 beds
$6.2M
RentalsMedian asking base rent
4 beds
$10,000
If you're looking for a staid, quiet place to live, Chelsea is not for you. Its thriving arts scene has always been a big draw for creative types. Not surprisingly, residents pay a high price to live in such a hip and happening part of Manhattan. The neighborhood has some of the most exclusive restaurants and bars in the city, and real estate prices are steep — especially for new condos along the High Line.
Slip down many of the side streets, however, and you're likely to find some beautiful and historic townhouses nestled gracefully within the neighborhood's hustle and bustle.




















































































































































































