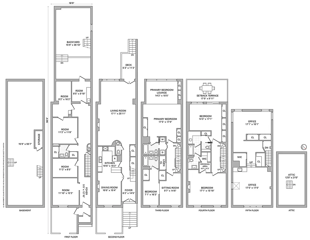
5,625 ft²
$621 per ft²
10 rooms
4 beds
4+ baths
Mixed-use building
- Kips Bay
Resale
reported sale
Sold on 2/6/2026
Not yet verified by closing records
Seller's agents
This home has been saved by 68 users.
Listing by Compass, Corporate Broker, 110 5th Avenue, New York, NY 10011
Common charges
Not applicable
Estimated payment
$21,509/mo
Legal disclaimerAll calculations are estimates provided by StreetEasy for informational purposes only. Actual amounts or financing terms may vary. Please contact your mortgage provider for specifics.Taxes
$4,000/mo
Tax abatement
No info
About
Seller’s agent
description
Calm & Tranquil Oasis in the Heart of Manhattan
206 East 30th Street is a one-of-a-kind, historic & iconic townhouse, spanning 5 stories, encompassing over 5600+ sq ft, approximately 18.75' wide x 60' long, located on a 18.75' x 98.75' lot.
Built in 1858, building highlights include spectacular light and sky in every room,10 ft parlor level ceilings, 900 sq ft outdoor garden, two terraces, through...
Policies
Sorry, policy info isn’t available right now. Check back later.
Home features
Central air
Dishwasher
Fireplace
Hardwood floors
Private outdoor space
Garden, Terrace
View
City, Garden
Washer/dryer
Building amenities
Services and facilities
Laundry in building
Wellness and recreation
No info on wellness and recreation
Shared outdoor space
No info on shared outdoor space
About the building
206 East 30th Street
206 East 30th Street, New York, NY 10016
1 unit
5 stories
1901 built
Property history
- Price Change: ↓ $200,000 (-5.4%) on 11/10/25
- Days on market: 144 daysThis is the number of days the listing has been on StreetEasy.
| Date | Price | Event |
|---|---|---|
2/6/2026 | $3,495,000 | Sold by Compass |
12/16/2025 | $3,495,000 | In contract |
12/14/2025 | $3,495,000 | Delisted by Compass |
11/10/2025 | $3,495,000 | Price decreased by 5% |
9/23/2025 | $3,695,000 | Price decreased by 5% |
Past listing photos
Sign in to take a closer look at how this home compares to similar homes.
Explore Kips Bay
Transit
| Location | Distance |
|---|---|
6at 28th St | 0.22 miles |
6at 33rd St | 0.24 miles |
6at 23rd St | 0.38 miles |
Ferryat E 34th Street Ferry Landing | 0.44 miles |
RWat 28th St | 0.49 miles |






















































































































































































