$7,800
For Rent
Base rent only. For total monthly price and additional fees, see .
Rented 7/1/2022
- ft²
4 rooms
3 beds
2 baths
Rental unit
- Upper West Side
Under NYC law, you can't be charged a broker fee if you didn't hire a broker.
Listed By
This home has been saved by 67 users.
Listing by Brown Harris Stevens, Real Estate Principal Office, 100 Fifth Avenue, New York, NY 10011
Unavailable
Rented on 7/1/2022
Days on market
22 days
Last price change
No changes
About
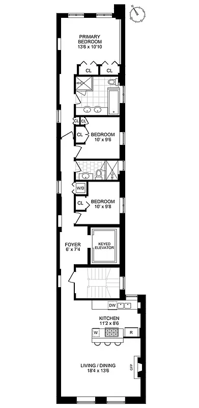
STUNNING FULL FLOOR 3BR in PRIME UWS
This home has WOW factor. Nestled on a tree-lined street, just one block from the subway and bus, as well as amazing restaurants and other conveniences, is this beautiful pre-war townhouse. The key locked elevator opens directly into a private foyer of this spacious three bedroom FULL FLOOR oasis.
The home features a large, sun-blasted, south facing living room with oversized windows, high ceilings and a gas fireplace.
Policies
Sorry, policy info isnât available right now. Check back later.
Home features
Central air
Dishwasher
Fireplace
Gas
Hardwood floors
View
City
Washer/dryer
Building amenities
Services and facilities
Bike room
Elevator
Storage space
Locker/cage
Wellness and recreation
No info on wellness and recreation
Shared outdoor space
No info on shared outdoor space
About the building
213 West 85th Street
213 West 85th Street, New York, NY 10024
6 units
6 stories
1910 built
Property history
Prices shown are base rent only. For total monthly price and additional fees, see .
| Date | Base rent | Event |
|---|---|---|
7/1/2022 | $7,800 | Rented by Brown Harris Stevens |
6/30/2022 | $7,800 | In contract |
6/8/2022 | $7,800 | Listed by Brown Harris Stevens |
4/5/2016 | $7,000 | |
3/8/2016 | $7,000 |
Past listing photos
Sign in to take a closer look at how this home compares to similar homes.
Explore Upper West Side
Transit
| Location | Distance |
|---|---|
1at 86th St | under 500 feet |
1at 79th St | 0.3 miles |
BCat 86th St | 0.38 miles |
123at 96th St | 0.41 miles |
BCat 81st StâMuseum of Natural History | 0.44 miles |
About Upper West Side
Rental prices shown are base rent before any fees. Visit listings for cost and fees breakdown.
SalesMedian asking price
3 beds
$2.95M
RentalsMedian asking base rent
3 beds
$9,042
Sandwiched between two beautiful parks, the Upper West Side is one of the greenest spots in Manhattan. For that reason, it is a perennial favorite. The Upper West Side is relaxed, but never dull. There are plenty of low-key bars and restaurants to frequent along Amsterdam Avenue, and Broadway is an always-bustling commercial center. The wide, tree-lined streets still boast many mom-and-pop stores. Less posh than the Upper East Side, it is more easily accessible by public transportation, and real estate prices are just as, if not more, expensive.
Learn more about Upper West SideSimilar homes
Prices shown are base rent only and don't include any fees. Visit each listing to see a complete cost breakdown.
Similar Homes looks at ad spend and other factors like location, price, and number of beds and baths.









































































































































































