$1,598,888
For Sale
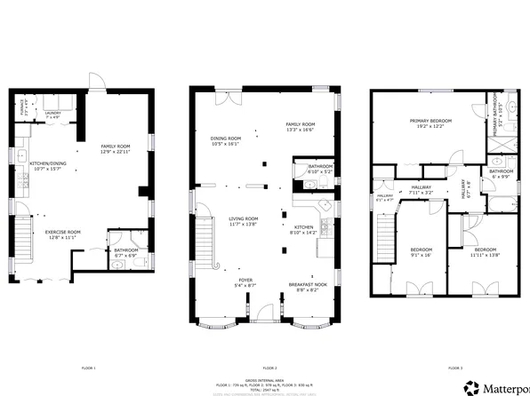
2,422 ft²
$660 per ft²
12 rooms
4 beds
3.5 baths
Two-family home
- Ditmars-Steinway
Resale
This home has been saved by 5 users.
Listing by Exit Realty First Choice, Limited Liability Broker, 180 32 Union Tpke, Fresh Meadows, NY 11365
Common charges
Not applicable
Estimated payment
$15,017/mo
Legal disclaimerAll calculations are estimates provided by StreetEasy for informational purposes only. Actual amounts or financing terms may vary. Please contact your mortgage provider for specifics.Taxes
$6,827/mo
Tax abatement
No info
About
Seller’s agent
description
********BEAUTIFUL 2 FAMILY BRICK HOUSE ---- " MOVING READY "********
✅Completely reconstructed from top to bottom in 2003.
✅Lot Size: 25 × 100✅Lot Sq Ft: 2,422✅Building Dimensions: 20 × 40
✅Annual Property Taxes: $6,827✅ NO PARKING,NO GARAGE.✅ STREET PARKING
✅Excellent for Famiies or 1st time buyers
✅1st Floor – Main Unit✅Cozy living room✅1 full bathroom✅Dining room✅Open-concept kitchen✅Custom made wooden...
Policies
Sorry, policy info isn’t available right now. Check back later.
Home features
Central air
Dishwasher
Hardwood floors
Private outdoor space
Terrace
View
City
Washer/dryer
Building amenities
Services and facilities
Laundry in building
Wellness and recreation
No info on wellness and recreation
Shared outdoor space
Courtyard
About the building
21-34 74th Street
21-34 74th Street, East Elmhurst, NY 11370
2 units
2 stories
1935 built
For sale
1 available units for saleFor rent
0 available units for rentDocuments and permits
View documents and permitsProperty history
- Price Change: No changes
- Days on market: 18 daysThis is the number of days the listing has been on StreetEasy.
| Date | Price | Event |
|---|---|---|
11/16/2025 | $1,598,888 | Listed by Exit Realty First Choice |
Sign in to take a closer look at how this home compares to similar homes.
Explore Ditmars-Steinway
Transit
| Location | Distance |
|---|---|
| 0.94 miles |
| 1.12 miles |
| 1.24 miles |
| 1.25 miles |
| 1.34 miles |

















































































































































































































































