1,302 ft²
$2,092 per ft²
3 rooms
2 beds
2 baths
Condo
- Flatiron
recorded sale
Sold on 2/16/2017
Verified by closing records
Last listed for $2,725,000
Seller's agent
Halstead Real Estate
This home has been saved by 143 users.
Listing by Halstead Real Estate | MLS #: 9723386
Common charges
$1,927/mo
Estimated payment
$16,348/mo
Legal disclaimerAll calculations are estimates provided by StreetEasy for informational purposes only. Actual amounts or financing terms may vary. Please contact your mortgage provider for specifics.Taxes
$462/mo
Tax abatement
No info
About
Seller’s agent
Buyer’s agent
description
Contract Signed. Full floor two bedroom unit.
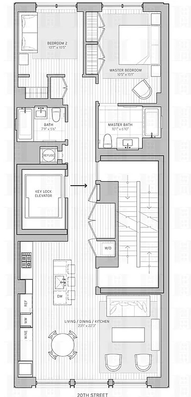
Just released and available for immediate occupancy, the coveted last two-bedroom at 21W20. This full floor residence on the 6th floor offers 1,302 square feet of living space and encompasses the entire floor of the development. This two bedroom/two bath home is accessed directly via elevator, opening into a gallery that connects the public and private areas of the home.
Policies
Sorry, policy info isn’t available right now. Check back later.
Home features
Private outdoor space
Garden
Washer/dryer
Building amenities
Services and facilities
Doorman
Elevator
Storage space
Wellness and recreation
No info on wellness and recreation
Shared outdoor space
No info on shared outdoor space
About the building
21W20
21 West 20th Street, New York, NY 10011
12 units
15 stories
2016 built
For sale
0 available units for saleFor rent
0 available units for rentDocuments and permits
View documents and permitsProperty history
- Price Change: ↓ $270,000 (-9.0%) on 11/21/16
- Days on market: 310 daysThis is the number of days the listing has been on StreetEasy.
| Date | Price | Event |
|---|---|---|
11/17/2021 | $2,346,215 | |
10/5/2021 | $2,395,000 | |
6/25/2021 | $2,395,000 | |
2/16/2017 | $2,725,000 | Sold by Halstead Real Estate |
5/31/2017 | $2,725,000 | No longer available |
Past listing photos
Sign in to take a closer look at how this home compares to similar homes.
Explore Flatiron
Transit
| Location | Distance |
|---|---|
FMat 23rd St | 0.15 miles |
RWat 23rd St | 0.15 miles |
PATHat 23rd Street Station | 0.17 miles |
FLM123at 14th St | 0.21 miles |
1at 18th St | 0.27 miles |
About Flatiron
Rental prices shown are base rent before any fees. Visit listings for cost and fees breakdown.
SalesMedian asking price
2 beds
$2.7M
RentalsMedian asking base rent
2 beds
$9,000
Flatiron is a historic New York City neighborhood that has seen its fair share of change over the years. In the early 1900s, it was a major commercial and residential center. By the middle of the century, things stagnated as businesses and residents left in search of more space and lower rents. In recent years, stores, upscale restaurants, and new developments moved back in, and the neighborhood is seeing a significant resurgence. Fifth Avenue now bustles with some of the best shopping in the city, and restaurants run the gamut from Michelin-rated to Yelp-reviewed food trucks.
Flatiron is busiest at midday and cocktail hour and tends to quiet down a bit at night, although the lights never truly turn off. Proximity to Union Square and multiple subway lines make it an equally easy trip to Midtown or Downtown.



























































































