$3,000
For Rent
Base rent only. For total monthly price and additional fees, see .
Rented 7/4/2012
- ft²
3 rooms
1 bed
1 bath
Two-family home
- Hudson Square
Under NYC law, you can't be charged a broker fee if you didn't hire a broker.
Listed By
Leo Wong
Douglas Elliman
This home has been saved by 3 users.
Listing by Douglas Elliman, Limited Liability Broker | Brokerage Listing ID: 1488661
Unavailable
Rented on 7/4/2012
Days on market
27 days
Last price change
↓ $200 (-6.3%) on 6/13/12
About
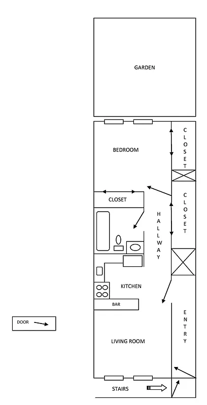
Greenwich Village / SoHo English Garden Apartment for rent - one bedroom one bath located on Charlton Street between Varick and Sixth Avenue, convenient to subway lines 1/2 & C/E, in historic renovated townhouse, excellent condition, full kitchen with dishwasher, three large closets, neutral colors, hardwood floors, new air conditioners, separately metered utilities, Charlton-King-Vandam Historic District, steps to New York University, New York Law, Tribeca, West Broadway and Hudson River Park.
Policies
Sorry, policy info isn’t available right now. Check back later.
Home features
No info on home features
Building amenities
Sorry, building amenities aren't available right now. Check back later.
About the building
22 Charlton Street
22 Charlton Street, New York, NY 10014
2 units
3 stories
1899 built
Property history
Prices shown are base rent only. For total monthly price and additional fees, see .
| Date | Base rent | Event |
|---|---|---|
8/9/2012 | $3,000 | Rented by Douglas Elliman |
7/4/2012 | $3,000 | No longer available |
6/28/2012 | $3,000 | In contract |
6/13/2012 | $3,000 | Price decreased by 6% |
6/1/2012 | $3,200 | Listed by Douglas Elliman |
Past listing photos
Sign in to take a closer look at how this home compares to similar homes.
Explore Hudson Square
Transit
| Location | Distance |
|---|---|
CEat Spring St | under 500 feet |
1at Houston St | under 500 feet |
1at Canal St | 0.3 miles |
ABCDEFMat West 4th St | 0.33 miles |
ACEat Canal St | 0.34 miles |
Similar homes
Prices shown are base rent only and don't include any fees. Visit each listing to see a complete cost breakdown.
Similar Homes looks at ad spend and other factors like location, price, and number of beds and baths.


























































































