3,433 ft²
$1,966 per ft²
5 rooms
3 beds
3.5 baths
Condo
- Soho
reported sale
Sold on 1/28/2010
Not yet verified by closing records
Seller's agents
Wilbur Gonzalez
Brown Harris Stevens
This home has been saved by 6 users.
Listing by Brown Harris Stevens, Real Estate Principal Office | MLS #: 60222
Common charges
$4,132/mo
Estimated payment
$44,939/mo
Legal disclaimerAll calculations are estimates provided by StreetEasy for informational purposes only. Actual amounts or financing terms may vary. Please contact your mortgage provider for specifics.Taxes
$3,105/mo
Tax abatement
No info
About
Seller’s agent
description
Classic wrought iron construction is met with sleek contemporary design to create a home that offers the utmost luxury. Built in 1860, 22 Mercer has been transformed into the pinnacle of Soho living.
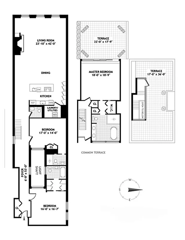
Residence PHD includes 3 bedrooms, 3 bathrooms and a powder room. Two private terraces totaling 950 sq ft add even more living space to this 3,400 sq ft duplex penthouse.
Policies
Pets allowed
Cats and dogs allowed
Home features
No info on home features
Building amenities
Services and facilities
Doorman
Full-time
Elevator
Wellness and recreation
No info on wellness and recreation
Shared outdoor space
No info on shared outdoor space
About the building
22 Mercer Street
22 Mercer Street, New York, NY 10013
16 units
5 stories
1910 built
For sale
0 available units for saleFor rent
0 available units for rentDocuments and permits
View documents and permitsProperty history
- Price Change: No changes
- Days on market: 68 daysThis is the number of days the listing has been on StreetEasy.
| Date | Price | Event |
|---|---|---|
8/10/2011 | $5,950,000 | |
8/11/2011 | $5,990,000 | |
5/24/2011 | $5,990,000 | |
4/28/2011 | $5,990,000 | Price decreased by 4% |
3/21/2011 | $6,250,000 | Price decreased by 4% |
Past listing photos
Sign in to take a closer look at how this home compares to similar homes.
Explore Soho
Transit
| Location | Distance |
|---|---|
JNQRWZ6at Canal St | under 500 feet |
ACEat Canal St | 0.18 miles |
6at Spring St | 0.25 miles |
1at Canal St | 0.27 miles |
1at Franklin St | 0.29 miles |
About Soho
Rental prices shown are base rent before any fees. Visit listings for cost and fees breakdown.
SalesMedian asking price
3 beds
$5.75M
RentalsMedian asking base rent
3 beds
$20,000
SoHo has some of the best people-watching in Manhattan, as it is a mecca for the trendy, sophisticated downtown elite. The north-south running streets are often sites of fashion shoots as well as home to upscale European boutiques. The east-west running streets are busier and always clogged with vendors selling everything from iPhone cases to incense. One you hit Broadway, you could be in just about any mall in America with retail chains, tourists, teenagers, and disgruntled New Yorkers dominating the avenue. The energy in SoHo is fast-paced and all hustle and bustle; it is a quintessentially vibrant New York neighborhood, but certainly not for the faint-of-heart or those looking for some peace and quiet.
Learn more about Soho
















































































































































