$4,250
For Rent
Base rent only. For total monthly price and additional fees, see .
Rented 3/8/2023
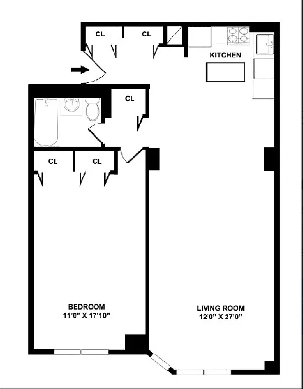
- ft²
4 rooms
1 bed
1 bath
Condo
- Lenox Hill
Under NYC law, you can't be charged a broker fee if you didn't hire a broker.
Listed By
This home has been saved by 69 users.
Listing by Living New York, Limited Liability Broker
Unavailable
Rented on 3/8/2023
Days on market
17 days
Last price change
↑ $50 (+1.2%) on 1/24/23
About
∗∗ Upper East Side – New Exclusive ∗ Massive Fully Renovated 1BD/1BA with Air Conditioning, Chef’s Kitchen, Sprawling Hardwood Floors, in a Doorman Building with Roof Deck, Court Yard, Bike Room, Garage Parking, and Live-In Super ∗∗
Step inside this grand home, boasting a generous, open layout with modern fixtures, sprawling hardwood floors, tall ceilings, and an abundance of natural light.
Policies
Sorry, policy info isn’t available right now. Check back later.
Home features
Dishwasher
Hardwood floors
View
City, Water
Building amenities
Services and facilities
Doorman
Full-time
Elevator
Laundry in building
Live-in super
Wellness and recreation
No info on wellness and recreation
Shared outdoor space
No info on shared outdoor space
About the building
220 East 60th Street
220 East 60th Street, New York, NY 10022
137 units
13 stories
1965 built
Property history
Prices shown are base rent only. For total monthly price and additional fees, see .
| Date | Base rent | Event |
|---|---|---|
3/8/2023 | $4,250 | Rented by Living New York |
2/10/2023 | $4,250 | In contract |
1/24/2023 | $4,250 | Price increased by 1% |
1/24/2023 | $4,200 | Listed by Living New York |
4/15/2023 | $4,499 |
Past listing photos
Sign in to take a closer look at how this home compares to similar homes.
Explore Lenox Hill
Transit
| Location | Distance |
|---|---|
NRW456at Lexington Av/59th St | under 500 feet |
FQat Lexington Av/63rd St | 0.22 miles |
EM6at Lexington Av–53rd St | 0.33 miles |
NRat 59th St | 0.42 miles |
6at 68th St–Hunter College | 0.43 miles |
Similar homes
Prices shown are base rent only and don't include any fees. Visit each listing to see a complete cost breakdown.
Similar Homes looks at ad spend and other factors like location, price, and number of beds and baths.




































































































