$2,250
For Rent
Base rent only. For total monthly price and additional fees, see .
Rented 7/14/2021
- ft²
3 rooms
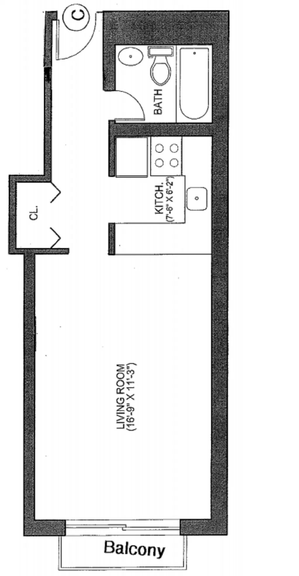
Studio
1 bath
Rental unit
- Yorkville
Under NYC law, you can't be charged a broker fee if you didn't hire a broker.
Listed By
This home has been saved by 160 users.
Listing by Compass, Corporate Broker, 590 Madison Avenue, New York, NY 10022
Searching with a housing voucher, like Section 8?
Unavailable
Rented on 7/14/2021
Days on market
49 days
Last price change
↑ $300 (+11.8%) on 7/14/21
About
Studio apartment with sunny southern exposures from over sized windows and renovated kitchen and bathroom. The apartment features beautiful hardwood floors throughout and is located in an Elevator building with laundry room and live in super on serene, tree lined 81st Street with close proximity to Whole Foods, Fairway, Equinox, and an abundance of acclaimed restaurants and nightlife.
Policies
Pets allowed
Home features
Hardwood floors
Building amenities
Services and facilities
Elevator
Laundry in building
Live-in super
Wellness and recreation
No info on wellness and recreation
Shared outdoor space
No info on shared outdoor space
About the building
221 East 82nd Street
221 East 82nd Street, New York, NY 10028
24 units
6 stories
1981 built
Property history
Prices shown are base rent only. For total monthly price and additional fees, see .
| Date | Base rent | Event |
|---|---|---|
7/14/2021 | $2,250 | Rented by Compass |
7/14/2021 | $2,250 | Price increased by 15% |
6/21/2021 | $1,950 | Price decreased by 22% |
5/26/2021 | $2,495 | Listed by Compass |
6/17/2017 | $2,995 |
Past listing photos
Sign in to take a closer look at how this home compares to similar homes.
Explore Yorkville
Transit
| Location | Distance |
|---|---|
Qat 86th St | under 500 feet |
456at 86th St | 0.23 miles |
6at 77th St | 0.3 miles |
Qat 72nd St | 0.53 miles |
Qat 96th St | 0.59 miles |
About Yorkville
Rental prices shown are base rent before any fees. Visit listings for cost and fees breakdown.
SalesMedian asking price
Studio
$399K
RentalsMedian asking base rent
Studio
$2,900
When George Washington commandeered the building site that would eventually become Gracie Mansion, he probably didn't imagine that this peaceful, riverside enclave would become the lively residential neighborhood it is today. Between then and now, Yorkville has seen a lot of change. Tony mansions and elevated trains went up at the turn of the century and then came down in the postwar years as a middle-class population moved in.
Now, the neighborhood is a haven of high-rise co-ops and condos interspersed with quiet rows of townhouses. The mixed housing stock makes Yorkville a practical choice for anyone seeking a slowed-down Manhattan vibe. Several avenues over from the throngs of Lexington and Third Avenues, Yorkville maintains a low-key, no-frills feel — it's a place where you'll find more diners and donut shops than upscale lounges and boutiques. This homey attitude is writ in its storefronts, where the food is kept simple and the owners are often from around the block.
Similar homes
Prices shown are base rent only and don't include any fees. Visit each listing to see a complete cost breakdown.
Similar Homes looks at ad spend and other factors like location, price, and number of beds and baths.

































































